

VIVEE Immobillienbuero
004 ···
Nr. anzeigenPreise & Kosten
Provision für Käufer
provisionsfrei
Die Immobilie
Zu diesem Angebot wurden vom Anbieter keine weiteren Daten hinterlegt. Für weitere Informationen bitte den Anbieter kontaktieren.
Nach Informationen fragenDetails
Objektbeschreibung
Neubauwohnungen in Benijofar in zentraler Lage
Modernes Wohnen in Benijofar
Diese exklusive Neubauanlage in Benijofar umfasst nur 11 moderne Wohnungen, die zeitgenössische Architektur, Komfort und hochwertige Materialien vereinen. Das Projekt umfasst Wohnungen im Erdgeschoss und im ersten Stock mit großzügigen Terrassen...
Weitere Informationen
Stichworte
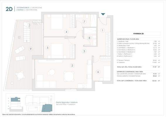
Nutzfläche: 90,00 m², Gesamtfläche: 90,00 m², Anzahl der Schlafzimmer: 3, Anzahl der Badezimmer: 2, Bundesland: Alicante (Costa Blanca)>
Anbieter der Immobilie
VIVEE Immobillienbuero
Calle Salvador Dali 13, C.C Via Park II, Local 15, 03189 Orihuele Costa
004 ···
Nr. anzeigenOnline-ID: 2px4457
Referenznummer: 56816
Finde Angebote wie dieses
Hier geht es zu unserem Impressum, den Allgemeinen Geschäftsbedingungen, den Hinweisen zum Datenschutz und nutzungsbasierter Online-Werbung.