
Tensundern Immobilienmarketing
Doreen Busse und Silvana Witt
004 ···
Nr. anzeigenPreise & Kosten
Kaution
2.910,00
Warum sehe ich diese Anzeige? – Du siehst diese Anzeige basierend auf Ihrer Navigation auf unserer Website und den Suchkriterien, die du verwendet hast.
Lage
Mecklenburgstraße, 19053 Schwerin. Dank der zentralen Lage sind diverse Einkaufsmöglichkeiten, Schulen und Ärzte leicht zu erreichen. Die Anbindung an öffentliche Verkehrsmittel ist hervorragend, sodass Sie schnell und bequem in alle Teile der Stadt gelangen. Genießen Sie das lebendige Kulturangebot der Umgebung, wo...
Die Wohnung
Wohnungslage
Dachgeschoss
Bezug
nach Vereinbarung
Wohnanlage
Energie & Heizung
Warum sehe ich diese Anzeige? – Du siehst diese Anzeige basierend auf Ihrer Navigation auf unserer Website und den Suchkriterien, die du verwendet hast.
Energieausweistyp
Verbrauchsausweis
Gebäudetyp
Wohngebäude
Baujahr laut Energieausweis
2014
Wesentliche Energieträger
GAS
Gültigkeit
bis 12.11.2035
Effizienzklasse
C
Endenergieverbrauch
79,50 kWh/(m²·a)
Weitere Energiedaten
Heizungsart
Zentralheizung
Details
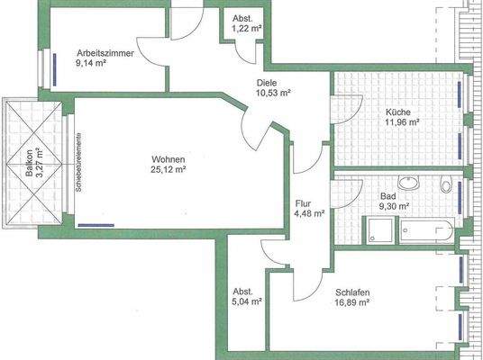
Objektbeschreibung
Diese attraktive Mietwohnung befindet sich im 3. Obergeschoss eines gepflegten Wohn- und Geschäftshauses. Sie bietet auf ca. 97 m² Wohnfläche eín komfortables Wohnerlebnis. Dank eines vorhandenen Fahrstuhls ist der Zugang barrierearm und bequem. Die lichtdurchfluteten Räume schaffen eine angenehme Wohnatmosphäre und...
Ausstattung
u. a.
- Vinylfußbodenbelag in allen Wohn- und Schlafräumen sowie Diele
- Wände mit Glasfasertapete frisch weiß gestrichen
- gefliestes Tageslichtbad mit Badewanne und Dusche
- 2 Abstellräume in der Wohnung
- großer Balkon
Weitere Informationen
Sonstiges
Mindestmietdauer: 12 Monate
Energieausweis: Verbrauchsausweis; Baujahr Gebäude: 2013; Baujahr Wärmeerzeuger: 2014;
Endenergieverbrauch: 79,5 kWh/(m²*a); Energieausweis gültig bis: 12.11.2035; wesentlicher Energieträger: Gas; Energieeffizienzklasse: C; Warmwasser: enthalten
Stichworte
Anzahl...
Anbieter der Immobilie
Tensundern Immobilienmarketing
Geschwister-Scholl-Str. 8, 19053 Schwerin
Online-ID: 2px2j55
Referenznummer: 4660_7
Finde Angebote wie dieses
Hier geht es zu unserem Impressum, den Allgemeinen Geschäftsbedingungen, den Hinweisen zum Datenschutz und nutzungsbasierter Online-Werbung.