
RE/MAX Welcome Hornyik Immobilienmakler GmbH
Herr Roland Wurth
+43 ···
Nr. anzeigenPreise & Kosten
Provision für Käufer
3% des Kaufpreises zzgl. 20% USt.
Die Wohnung
Bezug
nach Vereinbarung
Wohnanlage
Energie & Heizung
Warum sehe ich diese Anzeige? – Du siehst diese Anzeige basierend auf Ihrer Navigation auf unserer Website und den Suchkriterien, die du verwendet hast.
Heizwärmebedarf (HWB)
42,00 kWh/(m²·a)
Gesamtenergieeffizienz (fGEE)
1,01
Weitere Energiedaten
Energieträger
Gas
Heizungsart
Zentralheizung
Details
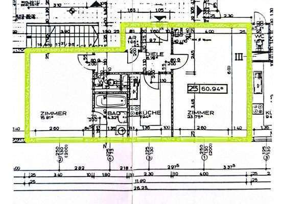
Objektbeschreibung
Diese einladende Wohnung befindet sich in einem ca. 1985 errichteten Wohnhaus und präsentiert sich in einem sehr gepflegten Zustand. Dank der Lage im 5. Liftstock genießen Sie eine besonders ruhige und, durch die großen Fensterflächen, auch helle Wohnatmosphäre. Die westseitige Ausrichtung sorgt zusätzlich für angenehme...
Weitere Informationen
Stichworte
Fahrradraum, Anzahl der Badezimmer: 1, Anzahl der separaten WCs: 1, Bundesland: Wien
Anbieter der Immobilie

RE/MAX Welcome Hornyik Immobilienmakler GmbH
Pfarrgasse 2, 2500 BADEN
Online-ID: 2pwyr53
Referenznummer: OBGC2026031009285527483027a5ab4
Finde Angebote wie dieses
Günstige Immobilienfinanzierung einfach online berechnen
Persönliches Angebot berechnenWarum sehe ich diese Werbung? – Du siehst diese Werbung basierend auf Deiner Navigation auf unserer Website und der von Dir verwendeten Suchkriterien.
Diese Werbung wird bezahlt von durchblicker
Werbung melden
Hier geht es zu unserem Impressum, den Allgemeinen Geschäftsbedingungen, den Hinweisen zum Datenschutz und nutzungsbasierter Online-Werbung.