
HB-HB-Immobilien
Herr Charles Hyde-Blake
004 ···
Nr. anzeigenPreise & Kosten
Provision für Käufer
3,57 % (inkl. 19 % MwSt.) vom beurkundeten Kaufpreis, jeweils vom Käufer und Verkäufer
Lage
In einer der begehrtesten und zugleich naturnahsten Wohnlagen der Hansestadt Bremen befindet sich diese Immobilie Stadtteil Horn im Grenzbereich zu Oberneuland. Die Umgebung ist geprägt von viel Grün, einer ruhigen, gewachsenen Nachbarschaft und einer angenehmen, fast ländlichen Atmosphäre - ein Ort, an dem man ankommt und...
Das Haus
Kategorie
Einfamilienhaus
Baujahr
1952
Bezug
ab sofort
Energie & Heizung
Warum sehe ich diese Anzeige? – Du siehst diese Anzeige basierend auf Ihrer Navigation auf unserer Website und den Suchkriterien, die du verwendet hast.
Energieausweistyp
Bedarfsausweis
Gebäudetyp
Wohngebäude
Baujahr laut Energieausweis
1952
Wesentliche Energieträger
GAS
Gültigkeit
bis 29.02.2036
Effizienzklasse
F
Endenergiebedarf
166,90 kWh/(m²·a)
Weitere Energiedaten
Energieträger
Gas
Details
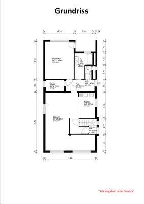
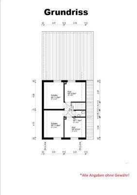
Objektbeschreibung
Dieses Einfamilienhaus wurde 1952 in Massivbauweise errichtet, in den 1970er-Jahren erweitert und ab 2003 durch den jetzigen Eigentümer umfassend saniert und modernisiert. Die Immobilie verfügt über eine funktionale und klar strukturierte Raumaufteilung mit vielseitigen Nutzungsmöglichkeiten. Die Wohnfläche verteilt sich auf...
Ausstattung
- 6 Zimmer
- Küche mit Einbauküche
- Tageslicht Duschbad
- separates WC im EG und OG
- ausgebauter Dachboden
- Teilkeller
- Gasheizung ohne Warmwasseraufbereitung (2017 erneuert)
- Dachsanierung 2003 (gesamter Dachaufbau und Eindeckung inkl. Isolierung)
- nahezu sämtliche Strom- und wasserführende...
Preisinformation
2 Stellplätze
1 Garagenstellplatz
Weitere Informationen
Sonstiges
Unsere Objektangaben basieren auf den uns erteilten Informationen. Eine Haftung für die Richtigkeit und Vollständigkeit können wir deshalb nicht übernehmen.
Grundsteuer: 778,96 € p.a.
Stichworte
Nutzfläche: 15,00 m², Anzahl der Schlafzimmer: 4, Anzahl der Badezimmer: 1, Anzahl der separaten WCs...
Anbieter der Immobilie
HB-HB-Immobilien
Schwachhauser Heerstr. 54A, 28209 Bremen
Online-ID: 2pwxh55
Referenznummer: CHB-26-03-0000473
Finde Angebote wie dieses
Hier geht es zu unserem Impressum, den Allgemeinen Geschäftsbedingungen, den Hinweisen zum Datenschutz und nutzungsbasierter Online-Werbung.