

Homeday GmbH
Kontaktiere den Anbieter schriftlich, es ist keine Telefonnummer hinterlegt.
Preise & Kosten
Provision für Käufer
3,57% inkl. MwSt. Sofern der Kaufpreis unter 119047,62€ liegt, fällt eine Mindestprovision an von 4250,00€ inkl. MwSt.
Lage
Die Immobilie liegt in Paulinenaue, einer ruhigen Gemeinde im Westen Brandenburgs im Landkreis Havelland, die sich durch ihre ländliche Idylle und zugleich gute Erreichbarkeit auszeichnet. Die Umgebung ist von Feldern, Wiesen und kleinen Waldgebieten geprägt und bietet ein typisch brandenburgisches Landschaftsbild mit weitem...
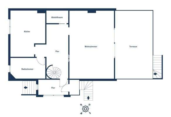
Das Haus
Kategorie
Doppelhaushälfte
Baujahr
1980
Bezug
nach Vereinbarung
Energie & Heizung
Warum sehe ich diese Anzeige? – Du siehst diese Anzeige basierend auf Ihrer Navigation auf unserer Website und den Suchkriterien, die du verwendet hast.
Energieausweistyp
Verbrauchsausweis
Gebäudetyp
Wohngebäude
Baujahr laut Energieausweis
1980
Wesentliche Energieträger
Gas
Gültigkeit
29.06.2023 bis 29.06.2033
Effizienzklasse
C
Endenergieverbrauch
95,70 kWh/(m²·a)
Weitere Energiedaten
Energieträger
Gas
Heizungsart
Zentralheizung
Details
Ausstattung
Diese Doppelhaushälfte aus dem Jahr 1980 präsentiert sich nach einer umfassenden Kernsanierung im Jahr 2021 in einem äußerst gepflegten Zustand und überzeugt durch ihre gelungene Kombination aus Komfort, Funktionalität und Behaglichkeit. Auf einer Wohnfläche von rund 147 Quadratmetern, verteilt auf zwei Etagen und vier...
Preisinformation
1 Stellplatz
1 Tiefgaragenstellplatz
Weitere Informationen
Sonstiges
Unsere Makler beraten Sie gerne persönlich per Telefon oder Videokonferenz. Schicken Sie uns einfach eine Anfrage über Immowelt und registrieren Sie sich auf unserer Kundenplattform myHomeday. Einen Link zu myHomeday erhalten Sie automatisch nach Ihrer Anfrage per E-Mail. Dort können Sie die Adresse und Dokumente...
Anbieter der Immobilie
Homeday GmbH
Axel-Springer-Straße 65 , 10969 Berlin
Kontaktiere den Anbieter schriftlich, es ist keine Telefonnummer hinterlegt.
Online-ID: 2pwx253
Referenznummer: FAU8ZBAE
Finde Angebote wie dieses
Hier geht es zu unserem Impressum, den Allgemeinen Geschäftsbedingungen, den Hinweisen zum Datenschutz und nutzungsbasierter Online-Werbung.