
Engel & Völkers Immobilien Deutschland GmbH
Engel & Völkers Hamburg MMC
+49 ···
Nr. anzeigenPreise & Kosten
Provision für Käufer
3.57 % inkl. gesetzl. MwSt. Weitere Informationen siehe Provisionshinweis.
Lage
Die Gemeinde Holm im Kreis Pinneberg überzeugt durch die ruhige, naturnahe Lage und der unmittelbaren Nähe zu Wedel und Hamburg. Der beliebte Holmer Wald mit seinen Sandbergen und die Elbmarsch lädt zu Spaziergängen und Radtouren ein. Golfplätze sind in unmittelbarer Nähe, aber auch für Pferdeliebhaber besteht ein...
Das Haus
Kategorie
Doppelhaushälfte
Baujahr
1994
Bezug
10.04.2026
Energie & Heizung
Warum sehe ich diese Anzeige? – Du siehst diese Anzeige basierend auf Ihrer Navigation auf unserer Website und den Suchkriterien, die du verwendet hast.
Energieausweistyp
Verbrauchsausweis
Gebäudetyp
Wohngebäude
Baujahr laut Energieausweis
1994
Gültigkeit
seit 25.02.2026
Effizienzklasse
D
Weitere Energiedaten
Energieträger
Gas
Details
Objektbeschreibung
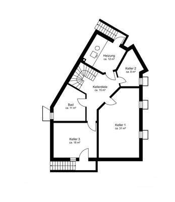
Diese Doppelhaushälfte aus dem Jahre 1994 bietet viel Platz für die Familie, Hobby und Freizeit. Die Heizungsanlage aus dem Jahre 2011 ist bereits für den Anschluss einer Solaranlage ausgestattet. Der Vollkeller bietet einen großen Hobbyraum und eine kleine Küchenzeile mit einem direktem Außenzugang. Des Weiteren ist noch...
Weitere Informationen
Provisionshinweis
3.57 % inkl. gesetzl. MwSt.
Kommt auf Grundlage unserer Maklerleistung ein Kaufvertrag über das Objekt zustande, ist der Kunde verpflichtet, eine Maklerprovision in Höhe von 3,57 % einschließlich der gesetzlichen Umsatzsteuer zu zahlen. Die Berechnungsgrundlage für die Provision ist der Gesamtkaufpreis...
Anbieter der Immobilie
Online-ID: 2pwwa55
Referenznummer: I-048LPN-W-048LPN
Finde Angebote wie dieses
Hier geht es zu unserem Impressum, den Allgemeinen Geschäftsbedingungen, den Hinweisen zum Datenschutz und nutzungsbasierter Online-Werbung.