
McMakler GmbH
Ihr McMakler Team
080 ···
Nr. anzeigenPreise & Kosten
Provision für Käufer
Die Provision i.H.v. 3,57 % inkl. MwSt. ist mit Kaufvertragsbeurkundung fällig, sofern der Verkaufspreis über 83.000,00 € liegt.
Liegt der Verkaufspreis dagegen bei/unter 83. Weitere Informationen siehe Provisionshinweis.
Lage
Lage: Attraktive Citylage stellt eine Top-Auswahl an Möglichkeiten und Veranstaltungen bereit
Bildung und Betreuung: Kindergarten und Schule in unmittelbarer Umgebung
Nahversorgung: Alle Geschäfte des täglichen Bedarfs sind fußläufig erreichbar
Anbindung: Bahnhof Rathaus Steglitz in nur 10 min zu Fuß, sehr gute...
Das Haus
Kategorie
Einfamilienhaus
Baujahr
1955
Bezug
ab sofort
Energie & Heizung
Warum sehe ich diese Anzeige? – Du siehst diese Anzeige basierend auf Ihrer Navigation auf unserer Website und den Suchkriterien, die du verwendet hast.
Energieausweistyp
Bedarfsausweis
Gebäudetyp
Wohngebäude
Baujahr laut Energieausweis
1955
Wesentliche Energieträger
Öl
Effizienzklasse
H
Endenergiebedarf
266,10 kWh/(m²·a)
Weitere Energiedaten
Energieträger
Öl
Heizungsart
Zentralheizung
Details
Objektbeschreibung
Objektnr: 1069914
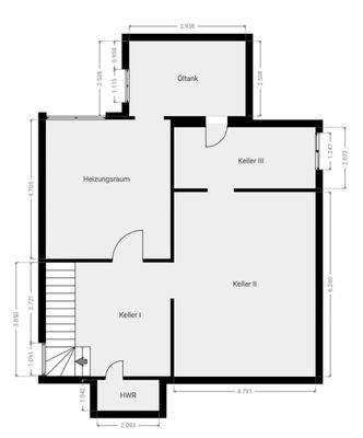
Die im Jahr 1955 in Massivbauweise errichtete Stadtvilla befindet sich in einer der begehrtesten Wohnlagen von Berlin-Steglitz. Auf einem großzügigen ca. 1.107 m² großen Grundstück in Hanglage erbaut, bietet das Anwesen vielfältige Entwicklungsmöglichkeiten. Das Haus ist vollständig unterkellert und...
Ausstattung
+ In gefragter Citylage von Berlin Steglitz, ruhig in einer Nebenstraße gelegen
+ Entspannung im Freien: Der großzügige Garten auf ca. 1.107 m² Grund lädt zum Verweilen ein - eine Terrasse und 2 Balkone bereichern das Erlebnis
+ Die Immobilie präsentiert sich in einem sanierungsbedürftigen Zustand, viel eigener...
Weitere Informationen
Provisionshinweis
Die Provision i.H.v. 3,57 % inkl. MwSt. ist mit Kaufvertragsbeurkundung fällig, sofern der Verkaufspreis über 83.000,00 € liegt.
Liegt der Verkaufspreis dagegen bei/unter 83.000,00 €, ist die fest vereinbarte Mindestprovision i.H.v. mind. 5.950,00 € inkl. MwSt. mit Kaufvertragsbeurkundung fällig...
Anbieter der Immobilie
McMakler GmbH
Am Postbahnhof 17, 10243 Berlin
Online-ID: 2pwtd55
Referenznummer: aefb07b9f8
Finde Angebote wie dieses
Hier geht es zu unserem Impressum, den Allgemeinen Geschäftsbedingungen, den Hinweisen zum Datenschutz und nutzungsbasierter Online-Werbung.