
VON POLL IMMOBILIEN Hochtaunus - Carola Öhl
Firma VON POLL IMMOBILIEN Shop Hochtaunus
+49 ···
Nr. anzeigenPreise & Kosten
Provision für Käufer
Käuferprovision beträgt 3,57 % (inkl. MwSt.) des beurkundeten Kaufpreises
Lage
Die Stadt Neu-Anspach befindet sich im Naturpark Hochtaunus und gliedert sich in die 4 Stadtteile Anspach, Rod am Berg, Westerfeld und Hausen-Arnsbach. Neu-Anspach genießt direkte Anbindung an die Kurstadt Bad Homburg, wie auch in die Rhein-Main-Metropole Frankfurt am Main.
Hier hat man die Natur und alle damit...
Das Haus
Baujahr
1928
Derzeitige Nutzung
vermietet
Energie & Heizung
Warum sehe ich diese Anzeige? – Du siehst diese Anzeige basierend auf Ihrer Navigation auf unserer Website und den Suchkriterien, die du verwendet hast.
Energieausweistyp
Bedarfsausweis
Gebäudetyp
Wohngebäude
Baujahr laut Energieausweis
1928
Wesentliche Energieträger
GAS
Gültigkeit
bis 26.02.2035
Effizienzklasse
G
Endenergiebedarf
210,10 kWh/(m²·a)
Weitere Energiedaten
Haustyp
Massivhaus
Energieträger
Gas
Heizungsart
Fußbodenheizung, offener Kamin, Zentralheizung
Details
Objektbeschreibung
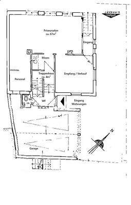
Dieses gepflegte Wohn- und Geschäftshaus mit drei Einheiten vereint Wohnen und Arbeiten unter einem Dach und überzeugt durch seine zentrale Lage in Neu-Anspach. Ob für Kapitalanleger, Gewerbetreibende oder Eigennutzer mit der Option zusätzlicher Mieteinnahmen - diese Immobilie bietet vielfältige Möglichkeiten auf insgesamt ca...
Ausstattung
- Wohn- und Geschäftshaus mit drei Einheiten (zwei Wohneinheiten sind vermietet)
- Gewerbeeinheit im Hochparterre mit ca. 60 m²
- Zweizimmerwohnung im Obergeschoss mit ca. 50 m² Wohnfläche, Fußbodenheizung, Zugang zum Garten und Terrasse
- Maisonette-Wohnung mit ca. 110 m² Wohnfläche, Kamin und ca. 56 m²...
Preisinformation
2 Stellplätze
1 Garagenstellplatz
Weitere Informationen
Sonstiges
GELDWÄSCHE: Als Immobilienmaklerunternehmen ist die von Poll Immobilien GmbH nach § 2 Abs. 1 Nr. 14 und § 11 Abs. 1, 2 Geldwäschegesetz (GwG) dazu verpflichtet, bei der Begründung einer Geschäftsbeziehung die Identität des Vertragspartners festzustellen und zu überprüfen, bzw. sobald ein ernsthaftes Interesse an...
Anbieter der Immobilie
VON POLL IMMOBILIEN Hochtaunus - Carola Öhl
Kreuzgasse 22, 61250 Usingen
Online-ID: 2pwk854
Referenznummer: 25 141 051b
Finde Angebote wie dieses
Hier geht es zu unserem Impressum, den Allgemeinen Geschäftsbedingungen, den Hinweisen zum Datenschutz und nutzungsbasierter Online-Werbung.