
McMakler GmbH
Ihr McMakler Team
080 ···
Nr. anzeigenPreise & Kosten
Provision für Käufer
provisionsfrei
Lage
Lage: Attraktive urbane Lage in Elze-Elze bietet große Vielfalt für Kulturbegeisterte und kurze Wege
Bildung und Betreuung: Familien profitieren von Kindergarten und Schule in max. 800 m Entfernung
Nahversorgung: Supermarkt, Apotheke, Postfiliale und Bankfiliale in weniger als 5 Gehminuten Entfernung
Anbindung...
Das Renditeobjekt
Kategorie
Mehrfamilienhaus
Baujahr
1887
Bezug
ab sofort
Energie & Heizung
Warum sehe ich diese Anzeige? – Du siehst diese Anzeige basierend auf Ihrer Navigation auf unserer Website und den Suchkriterien, die du verwendet hast.
Energieausweistyp
Bedarfsausweis
Gebäudetyp
Wohngebäude
Baujahr laut Energieausweis
1887
Wesentliche Energieträger
Öl
Effizienzklasse
H
Endenergiebedarf
340,60 kWh/(m²·a)
Weitere Energiedaten
Energieträger
Öl
Heizungsart
Zentralheizung
Details
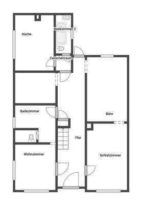
Objektbeschreibung
Objektnr: 1070466
+ Mehrfamilienhaus mit 3 Einheiten in Elze für Eigennutzung oder Vermietung
+ Rendite- und Vermietungspotenzial gegeben
+ Nutzen Sie den anstehenden Sanierungsbedarf zur Realisierung Ihrer Ideen
Weitere Informationen
Sonstiges
Vereinbaren Sie noch heute einen Besichtigungstermin!
_____________________________________________________
Alle Angaben sind ohne Gewähr und basieren ausschließlich auf Informationen, die uns von unserem Auftraggeber zur Verfügung gestellt wurden. Wir übernehmen keine Gewähr für die Vollständigkeit...
Anbieter der Immobilie
McMakler GmbH
Am Postbahnhof 17, 10243 Berlin
Online-ID: 2pwjq53
Referenznummer: 9320e95861
Finde Angebote wie dieses
Hier geht es zu unserem Impressum, den Allgemeinen Geschäftsbedingungen, den Hinweisen zum Datenschutz und nutzungsbasierter Online-Werbung.