
immonick Immobilienmanagement GmbH
Herrn Rudolf Nick
+49 ···
Nr. anzeigenPreise & Kosten
Kaution
3000
Provision für Mieter
2 Monats-Kaltmieten zzgl. MwSt.
Warum sehe ich diese Anzeige? – Du siehst diese Anzeige basierend auf Ihrer Navigation auf unserer Website und den Suchkriterien, die du verwendet hast.
Lage
Das Gewerbegrundstück befindet sich in in sehr guter Gewerbelage im Gewerbegebiet am Rand des bevorzugten Ortes Nickenich. Hier passen noch ländliches Leben verbunden mit sehr guter Infrastruktur und Verkehrsanbindung zusammen.
Die Autobahnen A61 und A48 befinden sich quasi direkt vor der Türe - ebenfalls die...
Die Industriefläche
Kategorie
Freiflächen
Baujahr
1991
Energie & Heizung
Warum sehe ich diese Anzeige? – Du siehst diese Anzeige basierend auf Ihrer Navigation auf unserer Website und den Suchkriterien, die du verwendet hast.
Wärme
Strom
Energieausweistyp
Verbrauchsausweis
Gebäudetyp
Nicht-Wohngebäude
Wesentliche Energieträger
Erdgas leicht
Endenergieverbrauch (Wärme)
82,20 kWh/(m²·a)
Endenergieverbrauch (Strom)
8,40 kWh/(m²·a)
Weitere Energiedaten
Energieträger
Gas
Details
Objektbeschreibung
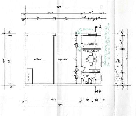
Zur Vermietung steht eine vielseitig nutzbare Gewerbefläche.
Die Halle mit großem Rolltor und Bürotrakt wurde 1991 in Massivbauweise errichtet. In der Halle befindet sich eine bis zur Decke hohe Fläche. Auf der rechten Hallenseite befindet sich in 2. Ebene ein Hochlager, das über eine Treppe oder über eine...
Weitere Informationen
Stichworte
Lagerfläche: 160,00 m², Gesamtfläche: 1.049,00 m², Bürofläche: 30,00 m²
Sonstiges: EDV-Verkabelung
Anbieter der Immobilie
immonick Immobilienmanagement GmbH
Göbelstr. 16, 56727 Mayen
Online-ID: 2pwg854
Referenznummer: 6891#IePKKW
Finde Angebote wie dieses
Hier geht es zu unserem Impressum, den Allgemeinen Geschäftsbedingungen, den Hinweisen zum Datenschutz und nutzungsbasierter Online-Werbung.