
Immobilien- und Beteiligungsgesellschaft der Volksbank Lindenberg mbH
Herr Markus Ihler
004 ···
Nr. anzeigenPreise & Kosten
Provision für Käufer
2,00 % Maklerprovision zzgl. gesetzlicher Mehrwertsteuer vom Kaufpreis
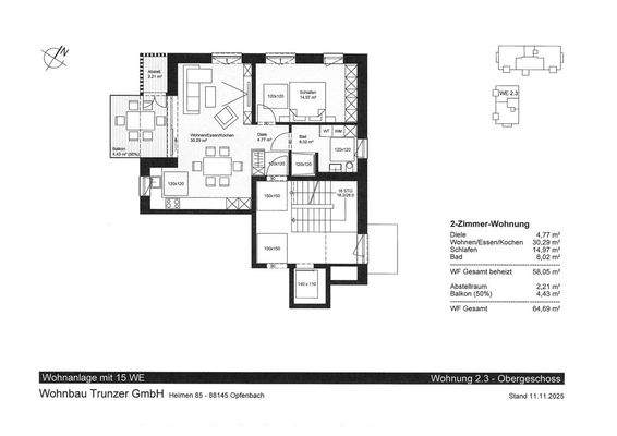
Die Wohnung
Wohnanlage
Energie & Heizung
Warum sehe ich diese Anzeige? – Du siehst diese Anzeige basierend auf Ihrer Navigation auf unserer Website und den Suchkriterien, die du verwendet hast.
Weitere Energiedaten
Heizungsart
Fußbodenheizung
Details
Objektbeschreibung
Gute Fördermittel - der Neubau wird im Kfw Standard 40 gebaut.
Zusätzliche Abschreibungen im QNG (Qualitätssiegel Nachhaltiges Gebäude) möglich!
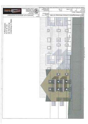
Auf dem Gelände der ehemaligen Gärtnerei Schwankhart in Lindenberg entstehen 15 Wohneinheiten aufgeteilt in zwei Baukörper.
Beide Gebäude fließen in der Tiefgarage...
Preisinformation
1 Tiefgaragenstellplatz, Kaufpreis: 30.000,00 EUR
Weitere Informationen
Stichworte
Anzahl der Schlafzimmer: 1, Anzahl der Badezimmer: 1, Anzahl Balkone und Terrassen: 1
Anbieter der Immobilie
Immobilien- und Beteiligungsgesellschaft der Volksbank Lindenberg mbH
Hauptstr. 53, 88161 Lindenberg im Allgäu
Online-ID: 2pwg353
Referenznummer: 2025-390_12
Finde Angebote wie dieses
Hier geht es zu unserem Impressum, den Allgemeinen Geschäftsbedingungen, den Hinweisen zum Datenschutz und nutzungsbasierter Online-Werbung.