
Michael Kuri Immobilien
076 ···
Nr. anzeigenPreise & Kosten
Provision für Käufer
3,57 % (inkl. 19% gesetzl. MwSt.)
Die Käuferprovision beträgt 3,57% (inkl. 19% gesetzl. MwSt.) vom notariell beurkundeten Kaufpreis.
Lage
Kenzingen, die "Perle des Breisgaus" am Fuße des Schwarzwaldes, liegt im nördlichen Breisgau, umgeben von Wiesen und Weinbergen. Kulturelle Veranstaltungen, ein großes Sportangebot sowie Vereine verschiedener Richtungen erhöhen die Attraktivität der Stadt. Diese verfügt über eine gute Infrastruktur mit Kindergärten, Grund-...
Die Wohnung
Derzeitige Nutzung
vermietet
Wohnanlage
Energie & Heizung
Warum sehe ich diese Anzeige? – Du siehst diese Anzeige basierend auf Ihrer Navigation auf unserer Website und den Suchkriterien, die du verwendet hast.
Energieausweistyp
Verbrauchsausweis
Gebäudetyp
Wohngebäude
Wesentliche Energieträger
Gas
Gültigkeit
26.11.2019 bis 25.11.2029
Effizienzklasse
D
Endenergieverbrauch
124,00 kWh/(m²·a) - Warmwasser enthalten
Weitere Energiedaten
Energieträger
Gas
Heizungsart
Zentralheizung
Details
Objektbeschreibung
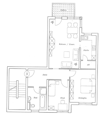
Diese gepflegte 3-Zimmerwohnung bietet eine gelungene Kombination aus funktionaler Raumaufteilung, angenehmer Helligkeit und vielseitiger Nutzbarkeit. Sie befindet sich in einem Mehrfamilienhaus aus dem Jahr 1995 in gut angebundener Wohnlage von Kenzingen und ist aktuell vermietet.
Mit einer Wohnfläche von ca. 76,5 m²...
Ausstattung
- Baujahr ca. 1995
- Wohnfläche ca. 76,5 m
-Einladender Wohn- und Essbereich mit Balkonzugang
- 2 schöne Schlafzimmer
- Großzügiger Balkon
- Separate Küche mit Abstellraum
- Tageslichtbad mit Dusche und Badewanne
- Kellerraum vorhanden
- 1 x TG-Stellplatz
- Gemeinschaftsräume: Wasch- und...
Preisinformation
1 Tiefgaragenstellplatz
Weitere Informationen
Sonstiges
Alle im Exposé genannten Angaben beruhen auf den Aussagen der Eigentümer und den uns zur Verfügung gestellten Unterlagen. Es wird daher keine Gewähr für die Richtigkeit der Angaben übernommen.
Stichworte
Tiefgarage vorhanden, Anzahl der Badezimmer: 1, Anzahl Balkone: 1, Bundesland: Baden-Württemberg, 3...
Anbieter der Immobilie
Online-ID: 2pwf953
Referenznummer: 810
Finde Angebote wie dieses
Hier geht es zu unserem Impressum, den Allgemeinen Geschäftsbedingungen, den Hinweisen zum Datenschutz und nutzungsbasierter Online-Werbung.