
Rutz Immobilien GmbH
Herr Jan Lippert
004 ···
Nr. anzeigenPreise & Kosten
Provision für Käufer
3,57 % (inkl. MwSt.) vom beurkundeten Kaufpreis (Käuferprovision)
Lage
Die Lage überzeugt durch eine angenehme Wohnatmosphäre in einem gewachsenen und ruhigen Wohngebiet im Delmenhorster Stadtteil Dwoberg-Ströhen. Sowohl Familien mit Kindern als auch Paare und Singles schätzen diese Wohngegend aufgrund der guten Infrastruktur und der kurzen Wege zu zahlreichen Einrichtungen des täglichen Bedarfs...
Das Haus
Kategorie
Reihenendhaus
Baujahr
1970
Bezug
01.07.2026
Energie & Heizung
Warum sehe ich diese Anzeige? – Du siehst diese Anzeige basierend auf Ihrer Navigation auf unserer Website und den Suchkriterien, die du verwendet hast.
Energieausweistyp
Bedarfsausweis
Gebäudetyp
Wohngebäude
Baujahr laut Energieausweis
1970
Wesentliche Energieträger
OEL
Gültigkeit
bis 15.03.2036
Effizienzklasse
E
Endenergiebedarf
139,80 kWh/(m²·a)
Weitere Energiedaten
Energieträger
Öl
Details
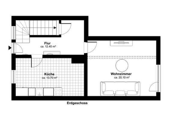
Objektbeschreibung
Dieses modernisierte Reihenendhaus befindet sich in ruhiger Wohnlage im beliebten Delmenhorster Stadtteil Dwoberg-Ströhen und bietet Ihnen ein Grundstück von ca. 251 m². Das im Jahr 1970 errichtete Haus wurde im Jahr 2000 umfassend saniert und präsentiert sich heute als gepflegtes Zuhause mit zeitgemäßem Wohnkomfort. Die...
Ausstattung
+ Kernsanierung/Umbau (2000)
+ Wärmedämmverbundsystem (ca. 2000)
+ Öl-Zentralheizung mit Betonerdtank (5.000L) (2015)
+ Zweifachverglaste Kunststofffenster (ab 2014)
+ Dreiadrige Elektrik mit FI-Schutzschalter
+ Einbauküche (2001)
+ Duschbad mit WC im DG (2021)
+ WC mit Pissoir im 1.OG (2009)
+...
Preisinformation
1 Carportplatz
Weitere Informationen
Sonstiges
Die Immobilie ist nach dem Wohnungseigentumsgesetz (WEG) aufgeteilt und stellt rechtlich eine eigenständige Einheit innerhalb einer Eigentümergemeinschaft dar.
Wir weisen darauf hin, dass die von uns weitergegebenen Objektinformationen, Unterlagen, Pläne etc. vom Auftraggeber stammen. Eine Haftung für die...
Anbieter der Immobilie
Online-ID: 2pwa352
Referenznummer: Ref.-Nr. 776
Finde Angebote wie dieses
Hier geht es zu unserem Impressum, den Allgemeinen Geschäftsbedingungen, den Hinweisen zum Datenschutz und nutzungsbasierter Online-Werbung.