
Crozilla.com
Re/max Complete Valentinus d.o.o.
+38 ···
Nr. anzeigenPreise & Kosten
Provision für Käufer
Bitte beachte, das Angebot kann bei Vertragsabschluss die Zahlung einer Provision beinhalten. Weitere Informationen erhältst Du vom Anbieter.
Die Immobilie
Zu diesem Angebot wurden vom Anbieter keine weiteren Daten hinterlegt. Für weitere Informationen bitte den Anbieter kontaktieren.
Nach Informationen fragenDetails
Objektbeschreibung
NEU IM ANGEBOT!! NEUBAU
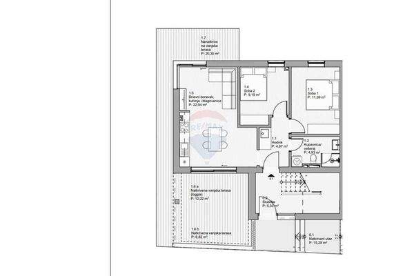
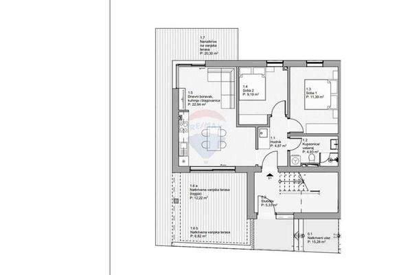
Wohngebäude mit insgesamt vier Wohnungen. Es befindet sich auf der Insel Pag im Ort Povljana. Das Gebäude verfügt über eine Duplexwohnung, die aus einem Eingangsbereich und einem Wohnzimmer im Erdgeschoss besteht. Die Schlafzimmer befinden sich im ersten/zweiten Stock. Im Erdgeschoss und im...
Weitere Informationen
Stichworte
Anzahl der Schlafzimmer: 2, Anzahl der Badezimmer: 1, 1 Etagen
Anbieter der Immobilie
Crozilla.com
Nova cesta 60, 10000 ZAGREB
Online-ID: 2pw4m55
Referenznummer: 18634099_7
Finde Angebote wie dieses
Hier geht es zu unserem Impressum, den Allgemeinen Geschäftsbedingungen, den Hinweisen zum Datenschutz und nutzungsbasierter Online-Werbung.