
allkauf haus Südwest
Herr Thomas Host
+49 ···
Nr. anzeigenPreise & Kosten
Provision für Käufer
Bei Abschluss eines Kaufvertrages wird eine Vermittlungs-/ Nachweisprovision in Höhe von 5,8 % inklusive 19 % Mehrwertsteuer auf den Kaufpreis vom Käufer fällig.
Lage
Die Doppelhaushälfte befindet sich in einem attraktiven Wohngebiet in Esthal - einer ruhigen und familienfreundlichen Umgebung. Eine gute Infrastruktur mit Einkaufsmöglichkeiten, Schulen und Freizeitangeboten ist in der Nähe vorhanden. Die naturnahe Lage lädt zu entspannenden Spaziergängen und vielfältigen Freizeitaktivitäten...
Das Haus
Kategorie
Doppelhaushälfte
Energie & Heizung
Warum sehe ich diese Anzeige? – Du siehst diese Anzeige basierend auf Ihrer Navigation auf unserer Website und den Suchkriterien, die du verwendet hast.
Weitere Energiedaten
Haustyp
KfW 55
Details
Objektbeschreibung
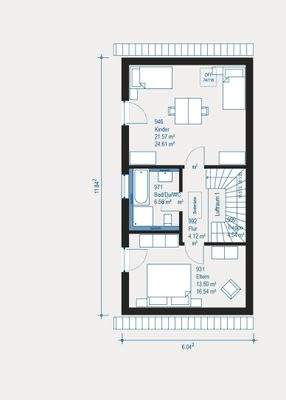
Diese projektierte Doppelhaushälfte in Esthal bietet Ihnen die einzigartige Möglichkeit, Ihr Traumhaus ganz nach Ihren individuellen Wünschen und Vorstellungen zu gestalten. Mit 3 Zimmern auf einer Wohnfläche von 113,64 m² verteilt auf zwei Etagen erleben Sie ein harmonisches Wohnambiente, das sich perfekt an Ihre...
Ausstattung
Ihr neues Zuhause ist ausgestattet mit hochwertigen Materialien und modernster Technik: Holzrahmenbauweise für nachhaltiges Bauen, dreifach verglaste Fenster inklusive Aluminiumrollläden, Luft-Wasser-Wärmepumpe für effiziente Heizung, kontrollierte Be- und Entlüftungsanlage mit Wärmerückgewinnung, Echtholztreppe, Bodenbeläge...
Weitere Informationen
Sonstiges
allkauf heißt für Sie maximale Sicherheit, kurze Lieferzeiten und garantierte Fertigstellung. Unser flexibles Ausbaukonzept erlaubt es Ihnen, den Innenausbau ganz nach Ihren Fähigkeiten und Wünschen selbst zu übernehmen oder auf unsere erfahrenen Profis zurückzugreifen. Wählen Sie aus unseren...
Anbieter der Immobilie
allkauf haus Südwest
Am Alten Schwimmbad 5, 66450 Bexbach
Online-ID: 2pw3f57
Referenznummer: 3869-301-kw14-71753
Finde Angebote wie dieses
Hier geht es zu unserem Impressum, den Allgemeinen Geschäftsbedingungen, den Hinweisen zum Datenschutz und nutzungsbasierter Online-Werbung.