

VIVEE Immobillienbuero
004 ···
Nr. anzeigenPreise & Kosten
Provision für Käufer
provisionsfrei
Das Haus
Kategorie
Doppelhaushälfte
Details
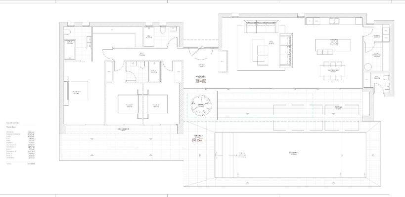
Objektbeschreibung
Neubauvilla zum Verkauf in Calpe - Modernes Design nur 900 m vom Strand entfernt
Exklusive Neubauvilla in einer erstklassigen Wohngegend von Calpe
Diese neu gebaute Villa befindet sich in einer der begehrtestem Wohngegenden von Calpe und bietet die perfekte Kombination aus modernem Komfort, Privatsphäre und hervorragender...
Weitere Informationen
Stichworte
Nutzfläche: 249,00 m², Gesamtfläche: 249,00 m², Anzahl der Schlafzimmer: 3, Anzahl der Badezimmer: 4, Bundesland: Alicante (Costa Blanca)>
Anbieter der Immobilie
VIVEE Immobillienbuero
Calle Salvador Dali 13, C.C Via Park II, Local 15, 03189 Orihuele Costa
004 ···
Nr. anzeigenOnline-ID: 2pvy357
Referenznummer: 83803
Finde Angebote wie dieses
Hier geht es zu unserem Impressum, den Allgemeinen Geschäftsbedingungen, den Hinweisen zum Datenschutz und nutzungsbasierter Online-Werbung.