

Claus R. Menges GmbH
064 ···
Nr. anzeigenPreise & Kosten
Provision für Mieter
2 Kaltmieten zzgl. MwSt.
Warum sehe ich diese Anzeige? – Du siehst diese Anzeige basierend auf Ihrer Navigation auf unserer Website und den Suchkriterien, die du verwendet hast.
Lage
1A-Lage
1 A Lage in Gießen, direkt in der Fußgängerzone.
Gießen ist der wichtigste Einzelhandelsstandort der Region Mittelhessen und gilt nicht umsonst als eine der bedeutendsten und attraktivsten Einkaufsstädte in Deutschland.
Die angebotene Gewerbefläche liegt sehr zentral mitten in der Stadt...
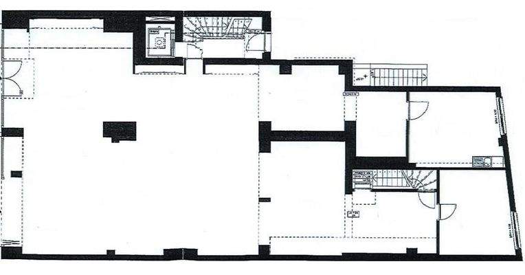
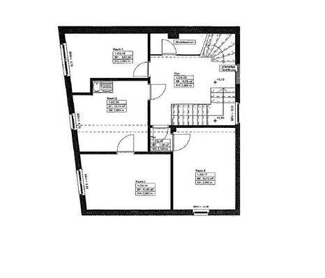
Die Ladenfläche
Baujahr
1949
Bezug
ab sofort
Energie & Heizung
Warum sehe ich diese Anzeige? – Du siehst diese Anzeige basierend auf Ihrer Navigation auf unserer Website und den Suchkriterien, die du verwendet hast.
Wärme
Strom
Energieausweistyp
Bedarfsausweis
Gebäudetyp
Nicht-Wohngebäude
Wesentliche Energieträger
Gas
Gültigkeit
22.04.2034 bis 22.04.2034
Endenergiebedarf (Wärme)
210,20 kWh/(m²·a)
Endenergiebedarf (Strom)
9,60 kWh/(m²·a)
Weitere Energiedaten
Energieträger
Gas
Details
Objektbeschreibung
Eine bessere Lage gibt es für Ihr Ladengeschäft in Gießen nicht: Eingebettet in historische Fassaden, bummeln täglich unzählige Kunden durch Mittelhessens Einkaufsmeile Nr.1. Jedes Jahr besuchen rund 11.500.000 Menschen den beliebten und belebten Seltersweg.
Die schöne Einkaufsstraße mit den vielen Geschäften und...
Weitere Informationen
Baujahr
1949
Sonstiges
Dieses Angebot ist freibleibend und unverbindlich, Irrtum sowie Zwischenvermietung vorbehalten. Das Objektangebot wurde von uns nach bestem Wissen sorgfältig zusammengestellt. Wir können jedoch nicht gewährleisten, dass alle Angaben vollständig sind. Die Daten wurden vom Vermieter auf die...
Anbieter der Immobilie
Online-ID: 2pvw752
Referenznummer: 50059.001 VE 01 + 50059.002 VE 02
Finde Angebote wie dieses
Hier geht es zu unserem Impressum, den Allgemeinen Geschäftsbedingungen, den Hinweisen zum Datenschutz und nutzungsbasierter Online-Werbung.