
Bank 1 Saar Immobilien GmbH
Frau Lisa Bender
068 ···
Nr. anzeigenPreise & Kosten
Provision für Käufer
3,57 % inkl. MwSt.
Lage
Die Immobilie befindet sich im Stadtteil Heinitz der Kreisstadt Neunkirchen im Saarland in unmittelbarer Nähe zum Wald, ideal für Naturliebhaber!
Heinitz ist ein gewachsener, ruhiger Wohnstandort mit einer guten Mischung aus dörflichem Charakter und städtischer Infrastruktur. Der Stadtteil ist besonders bei Familien...
Das Haus
Kategorie
Einfamilienhaus
Baujahr
1955
Energie & Heizung
Warum sehe ich diese Anzeige? – Du siehst diese Anzeige basierend auf Ihrer Navigation auf unserer Website und den Suchkriterien, die du verwendet hast.
Energieausweistyp
Bedarfsausweis
Gebäudetyp
Wohngebäude
Baujahr laut Energieausweis
1950
Wesentliche Energieträger
Gas
Gültigkeit
26.02.2026 bis 25.02.2036
Effizienzklasse
E
Endenergiebedarf
151,20 kWh/(m²·a)
Weitere Energiedaten
Haustyp
Massivhaus
Energieträger
Gas
Heizungsart
Zentralheizung
Details
Objektbeschreibung
Durch die zwei vorhandenen Wohnungen kann die Immobilie flexibel als großzügiges Einfamilienhaus für die große Familie oder als Zweifamilienhaus mit zwei separaten Wohnungen beispielsweise zur Teilvermietung oder zum Mehrgenerationswohnen genutzt werden.
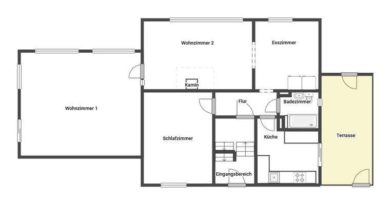
Mit einer Wohnfläche von ca. 190 m² bietet das Haus genügend Platz...
Ausstattung
Individuelle Ausstattungsmerkmale:
- Garten/ Gartenmitbenutzung
- Garage/ Stellplatz
- freistehend
Zum Parken stehen 2 Garagenstellplätze und weitere Stellfläche davor zur Verfügung.
Weitere Informationen
Stichworte
Anzahl der Schlafzimmer: 4, Anzahl der Badezimmer: 2, Anzahl Terrassen: 1, Bundesland: Saarland, modernisiert: 2016
Anbieter der Immobilie
Bank 1 Saar Immobilien GmbH
Kaiserstr. 17-19, 66111 Saarbrücken
Online-ID: 2pvv252
Referenznummer: 007267
Finde Angebote wie dieses
Hier geht es zu unserem Impressum, den Allgemeinen Geschäftsbedingungen, den Hinweisen zum Datenschutz und nutzungsbasierter Online-Werbung.