
McMakler GmbH
Ihr McMakler Team
080 ···
Nr. anzeigenPreise & Kosten
Provision für Käufer
Käufer-Provision: 7,14 % inkl. MwSt., sofern der Verkaufspreis über 83.000,00 € liegt. Die Provision ist mit Beurkundung des Kaufvertrages fällig.
Liegt der Verkaufspreis dagegen bei/unter 83. Weitere Informationen siehe Provisionshinweis.
Lage
Lage: Gefragte und zentrale Geschäftslage mitten in Schneverdingen
Nahversorgung: Sämtliche Geschäfte und Dienstleistersind fußläufig erreichbar
Bildung und Betreuung: Schulen und Kindertagesstätten in einem Umkreis von ca. 750 m ansässig
Anbindung: Bushaltestelle ca. 80 m, Bundesstraße 3 sowie Autobahn 7...
Die Ladenfläche
Kategorie
Laden
Baujahr
1953
Bezug
nach Absprache
Erdgeschoss
Energie & Heizung
Warum sehe ich diese Anzeige? – Du siehst diese Anzeige basierend auf Ihrer Navigation auf unserer Website und den Suchkriterien, die du verwendet hast.
Energieausweistyp
Verbrauchsausweis
Gebäudetyp
Wohngebäude
Baujahr laut Energieausweis
1953
Wesentliche Energieträger
Gas
Effizienzklasse
H
Endenergieverbrauch
200,00 kWh/(m²·a)
Weitere Energiedaten
Energieträger
Gas
Details
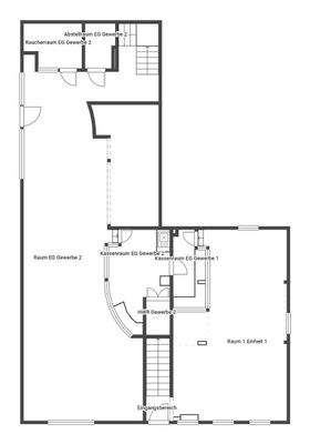
Objektbeschreibung
Objektnr: 1060499
Diese Gewerbeeinheit mit Anbau aus 1985 in gefragter Geschäftslage von Schneverdingen garantiert Ihnen eine gute Sichtbarkeit und eine hohe Zahl an Laufkunden. Dank der guten Sichtbarkeit und des gepflegten Zustands sind vorteilhafte Bedingungen für Gewerbetreibende geboten. Insgesamt 17 Stellplätze...
Ausstattung
+ Attraktive Gewerbeeinheit mit Anbau aus1985 in zentraler Lage - zuletzt in 2009 saniert
+ Zur Vermietung nutzbar oder auch als Bäckerei, Praxis, Versicherung oder Kosmetikstudio nutzbar
+ 2 Einheiten mit je einem Gäste-WC vorhanden, individuell teilbar
+ 17 Freistellplätze für Pkw sorgen für eine entspannte...
Weitere Informationen
Provisionshinweis
Käufer-Provision: 7,14 % inkl. MwSt., sofern der Verkaufspreis über 83.000,00 € liegt. Die Provision ist mit Beurkundung des Kaufvertrages fällig.
Liegt der Verkaufspreis dagegen bei/unter 83.000,00 €, ist die fest vereinbarte Mindestprovision i.H.v. mind. 5.950,00 € inkl. MwSt. mit...
Anbieter der Immobilie
McMakler GmbH
Am Postbahnhof 17, 10243 Berlin
Online-ID: 2pvur56
Referenznummer: f1691e661d
Finde Angebote wie dieses
Hier geht es zu unserem Impressum, den Allgemeinen Geschäftsbedingungen, den Hinweisen zum Datenschutz und nutzungsbasierter Online-Werbung.