

Immobilien Weber-Moewius
Frau Jessica Stommel
004 ···
Nr. anzeigenPreise & Kosten
Provision für Käufer
provisionsfrei
Lage
Trotz der naturnahen und idyllischen Lage im Bergischen Land finden Sie in Neunkirchen-Seelscheid, bedingt durch die gute Infrastruktur der Doppelgemeinde, alle Einrichtungen zur Deckung des täglichen Bedarfs. Die hier angebotene Immobilie befindet sich im Ortsteil Seelscheid in naturnaher Randlage.
Sie erreichen mit...
Das Grundstück
Details
Objektbeschreibung
Bei diesem provisionsfreien Angebot handelt es sich um 707 m² erschlossenes Bauland (Eckgrundstück) in angenehm ruhiger, naturnaher Ortsrandlage. Die Nachbarschaft ist geprägt von freistehenden Einfamilien- und Doppelhäusern mit schön angelegten Gärten.
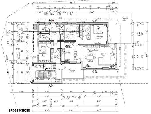
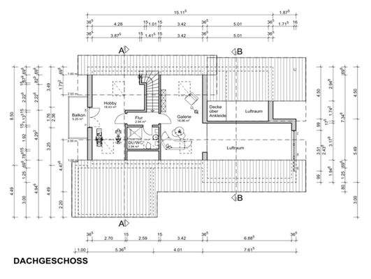
Eine gültige Baugenehmigung vom 20.03.2026 für ein...
Weitere Informationen
Sonstiges
Haben wir Ihr Interesse geweckt? Gerne senden wir Ihnen auf unverbindliche Anfrage das Exposé mit vollständiger Adresse per E-Mail zu. So können Sie sich bereits im Vorfeld einen Eindruck von der genauen Lage verschaffen.
Wir empfehlen zudem, vorab ein erstes Gespräch mit Ihrer Bank zu führen, um Ihre...
Anbieter der Immobilie
Immobilien Weber-Moewius
Zeithstraße 127, 53819 Neunkirchen-Seelscheid

Online-ID: 2pvuq52
Referenznummer: 3480
Finde Angebote wie dieses
Hier geht es zu unserem Impressum, den Allgemeinen Geschäftsbedingungen, den Hinweisen zum Datenschutz und nutzungsbasierter Online-Werbung.