

BAVARIA WERTIMMOBILIEN
Herr Robert Fürbeck
+49 ···
Nr. anzeigenPreise & Kosten
Provision für Käufer
3,57% inkl. MwSt.
Die Courtage bezieht sich nur auf den Grundstückspreis und wird mit notariellem Kaufvertrag fällig.
Lage
Das Baugrundstück befindet sich zentral und trotzdem ruhig gelegen, nur ca. 700m bis zur Ortsmitte Ottobrunn. In ca. 200m Entfernung befindet sich die Kreuzung der Rosenheimer Landstraße und Ottostraße mit 3 Bushaltestellen (Bus 210, 214, 221, 241). Von dort erreichen Sie die U-Bahn Neuperlach Süd in ca. 12 Minuten. Geschäfte...
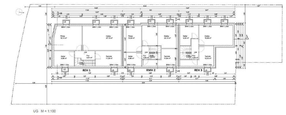
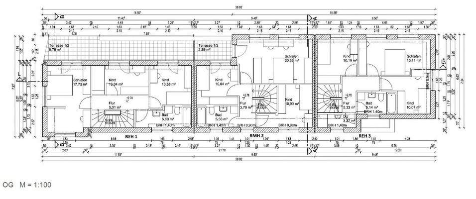
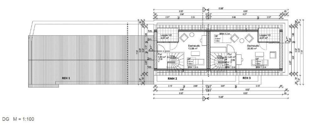
Das Haus
Kategorie
Reihenmittelhaus
Baujahr
2026
Derzeitige Nutzung
frei
Energie & Heizung
Warum sehe ich diese Anzeige? – Du siehst diese Anzeige basierend auf Ihrer Navigation auf unserer Website und den Suchkriterien, die du verwendet hast.
Weitere Energiedaten
Heizungsart
Fußbodenheizung, Luft-/Wasser-Wärmepumpe, Zentralheizung
Details
Objektbeschreibung
Das Baugrundstück liegt zentral und ruhig in Ottobrunn in der Zaunkönigstraße 26, nur ca. 100 m zur Bushaltestelle Rosenheimer Landstraße in Ottobrunn.
Das Bauvorhaben des Dreispänners ist schlüsselfertig projektiert:
- Baugenehmigung bereits erteilt
- Bauvertrag mit Festpreisgarantie
-...
Preisinformation
1 Stellplatz
1 Garagenstellplatz
Weitere Informationen
Sonstiges
Bitte nutzen Sie für den Erstkontakt gerne das Kontaktformular. Wir senden Ihnen dann umgehend das Exposé, so dass wir im nächsten Schritt einen Besichtigungstermin vereinbaren können.
Bavaria Wertimmobilien hat den Alleinauftrag zur Vermarktung des Hauses. Die Maklerprovision für den Käufer beträgt 3,57%...
Dokumente
Anbieter der Immobilie

Online-ID: 2pvsy56
Referenznummer: RE-ZK-RMH2
Finde Angebote wie dieses
Hier geht es zu unserem Impressum, den Allgemeinen Geschäftsbedingungen, den Hinweisen zum Datenschutz und nutzungsbasierter Online-Werbung.