

DAHLER Augsburg
Herr Jürgen Koppold
082 ···
Nr. anzeigenPreise & Kosten
Provision für Käufer
3,57 Prozent inkl. der gesetzl. MwSt., bezogen auf den Kaufpreis
Lage
Die Immobilie befindet sich in Kissing, einer gewachsenen und familienfreundlichen Gemeinde im Landkreis Aichach-Friedberg. Das Wohnumfeld ist geprägt von Einfamilienhäusern, ruhigen Anliegerstraßen und einer angenehmen Nachbarschaft - ideal für alle, die naturnah wohnen und zugleich eine gute Alltagsinfrastruktur...
Das Haus
Kategorie
Doppelhaushälfte
Baujahr
1966
Derzeitige Nutzung
vermietet
Energie & Heizung
Warum sehe ich diese Anzeige? – Du siehst diese Anzeige basierend auf Ihrer Navigation auf unserer Website und den Suchkriterien, die du verwendet hast.
Energieausweistyp
Bedarfsausweis
Gebäudetyp
Wohngebäude
Wesentliche Energieträger
GAS
Gültigkeit
bis 23.05.2026
Effizienzklasse
E
Endenergiebedarf
155,10 kWh/(m²·a)
Weitere Energiedaten
Energieträger
Gas
Heizungsart
Zentralheizung
Details
Objektbeschreibung
Entdecken Sie Ihr neues Zuhause in Kissing - eine charmante Doppelhaushälfte, ideal für Eigennutzer oder Kapitalanleger. Dieses Haus wurde 1966 erbaut und bietet viel Potenzial zur Verwirklichung Ihrer Wohnträume. Auf einem großzügigen Grundstück von ca. 481 m² erwartet Sie ein harmonisches Wohnambiente auf drei Etagen, diese...
Ausstattung
* Einbauküchen im EG und OG (DG Mietereigentum)
* Parkettboden in Schlaf- und Wohnzimmern
* Naturstein im Treppenhaus
* Linoleum-Boden in den Küchen
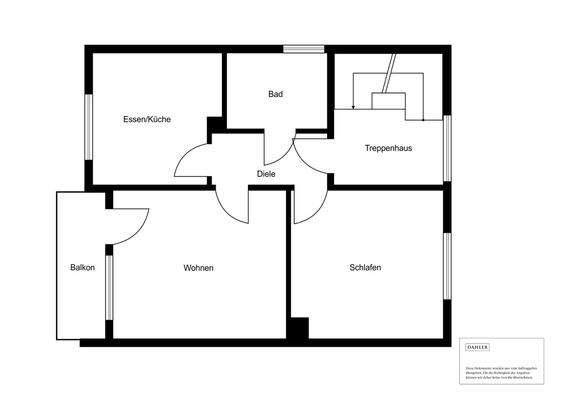
* EG: ca. 56,44 m², barrierefreies Bad (2016) mit bodengleicher Dusche, Fenster und Fußbodenheizung
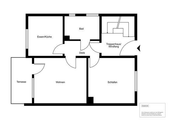
* OG: ca. 55,94 m², Bad mit Wanne und Fenster
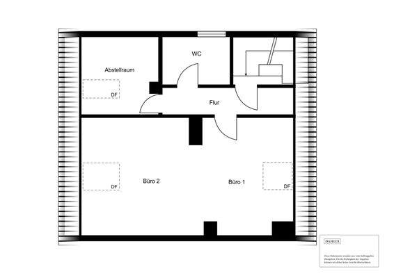
* DG: ca...
Weitere Informationen
Sonstiges
Grunderwerbsteuer, Notar- und Grundbuchkosten sind vom Käufer zutragen. Die Provision in Höhe von 3,57 Prozent inkl. der gesetzl. MwSt., bezogen auf den Kaufpreis ist bei Abschluss des Kaufvertrages verdient und fällig und vom Käufer an die DAHLER Augsburg, Inhaber: Homes Bayern GmbH zu zahlen. DAHLER Augsburg...
Anbieter der Immobilie
DAHLER Augsburg
Karlstraße 2, 86150 Augsburg

Online-ID: 2pvsj53
Referenznummer: DC-AUG3202
Finde Angebote wie dieses
Hier geht es zu unserem Impressum, den Allgemeinen Geschäftsbedingungen, den Hinweisen zum Datenschutz und nutzungsbasierter Online-Werbung.