

Gründer Immobilien
Herr Ralf Gründer
049 ···
Nr. anzeigenPreise & Kosten
Provision für Käufer
provisionsfrei
Das Haus
Kategorie
Doppelhaushälfte
Baujahr
2024
Bezug
nach Fertigstellung
Energie & Heizung
Warum sehe ich diese Anzeige? – Du siehst diese Anzeige basierend auf Ihrer Navigation auf unserer Website und den Suchkriterien, die du verwendet hast.
Energieausweistyp
Bedarfsausweis
Gebäudetyp
Wohngebäude
Wesentliche Energieträger
Luftwärmepumpe
Weitere Energiedaten
Heizungsart
Fußbodenheizung, Luft-/Wasser-Wärmepumpe
Details
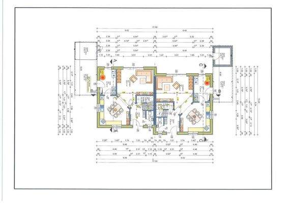
Objektbeschreibung
Provisionsfrei für den Käufer: Diese exklusive Neubau Doppelhaushälfte kann auf einem Grundstück ihrer Wahl bzw. auf einem von ihnen zur Verfügung gestellten Grundstück im Emsland oder Ostfriesland erstellt werden. Der Kaufpreis bezieht sich auf das reine Wohnhaus das Grundstück ist nicht im Kaufpreis enthalten.
Die...
Ausstattung
Bodenbeläge:
Hier kann der Erwerber frei wählen. Vorgesehen ist das der gesamte Erdgeschossbereich verfliest wird. Die Schlafzimmer könnten mit einem Laminat bzw. Teppichboden bestückt werden.
Wohn/Esszimmer, Küche und die Bad.
Küche:
Gerne sind wir Ihnen auch bei der Wahl einer neuen Einbauküche behilflich, unser...
Preisinformation
1 Carportplatz
Weitere Informationen
Stichworte
Carport vorhanden, Anzahl der Schlafzimmer: 3, Anzahl der Badezimmer: 1
Anbieter der Immobilie
Gründer Immobilien
Haupstraße 97, 26892 Dörpen

Online-ID: 2pvnh55
Referenznummer: 8031
Finde Angebote wie dieses
Hier geht es zu unserem Impressum, den Allgemeinen Geschäftsbedingungen, den Hinweisen zum Datenschutz und nutzungsbasierter Online-Werbung.