
allkauf haus GmbH
Herr Alexander Kruhl
+49 ···
Nr. anzeigenPreise & Kosten
Provision für Käufer
Bitte beachte, das Angebot kann bei Vertragsabschluss die Zahlung einer Provision beinhalten. Weitere Informationen erhältst Du vom Anbieter.
Lage
Diese Doppelhaushälfte befindet sich in der ruhigen und familienfreundlichen Gemeinde Kunreuth, eingebettet in eine charmante Naturlandschaft. Die hervorragende Infrastruktur ermöglicht Ihnen, alle täglichen Erledigungen bequem und schnell zu tätigen. Für Ihre Freizeitgestaltung stehen vielfältige Möglichkeiten offen: Ob...
Das Haus
Kategorie
Doppelhaushälfte
Energie & Heizung
Warum sehe ich diese Anzeige? – Du siehst diese Anzeige basierend auf Ihrer Navigation auf unserer Website und den Suchkriterien, die du verwendet hast.
Weitere Energiedaten
Haustyp
KfW 55
Heizungsart
Fußbodenheizung, Luft-/Wasser-Wärmepumpe
Details
Objektbeschreibung
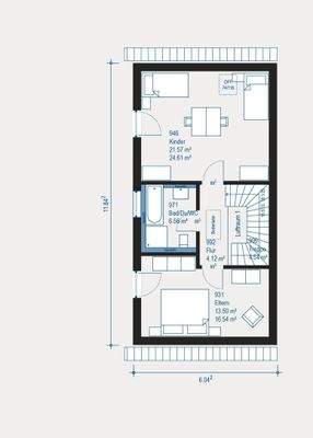
Entdecken Sie Ihre zukünftige Doppelhaushälfte in der idyllischen Gemeinde Kunreuth, die mit einer großzügigen Wohnfläche von 113,64 m² ein durchdachtes Raumkonzept bietet. Dieses Haus ist perfekt für Paare oder Familien, die Wert auf Komfort und Funktionalität legen. Verteilt auf zwei Etagen erwarten Sie zwei behagliche...
Ausstattung
- Hochwertige energieeffiziente Wandkonstruktion für optimale Wärmedämmung
- Stilvolle Echtholztreppe, die ein elegantes Wohnambiente schafft
- Umweltfreundliche Luft-Wasser-Wärmepumpe für nachhaltige Beheizung
- Komfortable Fußbodenheizung für wohlige Wärme im ganzen Haus
- Moderne Be- und Entlüftungsanlage sorgt...
Weitere Informationen
Sonstiges
allkauf steht für maximale Sicherheit, kurze Lieferzeiten und eine garantierte Fertigstellung. Zu jedem Haus gehören:
- Energieeffizienzwand
- Echtholztreppe
- Luft-Wasser-Wärmepumpe
- Fußbodenheizung
- Be- und Entlüftungsanlage
- 3-fach verglaste Fenster inklusive Rollläden aus...
Anbieter der Immobilie
allkauf haus GmbH
Ludwig Erhard Str. 2, 68162 Bad Vilbel
Online-ID: 2pvkt54
Referenznummer: 3347-325-kw13-80435
Finde Angebote wie dieses
Hier geht es zu unserem Impressum, den Allgemeinen Geschäftsbedingungen, den Hinweisen zum Datenschutz und nutzungsbasierter Online-Werbung.