
Crozilla.com
Eurovilla
+38 ···
Nr. anzeigenPreise & Kosten
Provision für Käufer
Bitte beachte, das Angebot kann bei Vertragsabschluss die Zahlung einer Provision beinhalten. Weitere Informationen erhältst Du vom Anbieter.
Die Wohnung
Wohnungslage
2. Geschoss
Details
Objektbeschreibung
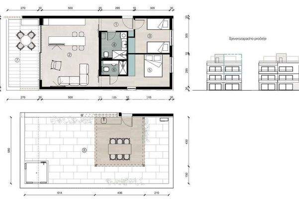
EKSKLUZIVNO! Otok Pag, plaza Perilo, vrhunski projekt izgradnje sest luksuznih vila u prvom redu do mora, smjestenih na prekrasnoj plazi Perilo u naselju Povljana na juznom dijelu otoka Paga.Navedeni stan (B6) nalazi se na 2. katu zgrade. Zatvorene je povrsine 64.45 m2, s balkonom ukupne velicine od 15.35 m2 (6.30), te...
Weitere Informationen
Stichworte
Anzahl der Schlafzimmer: 2, 1 Etagen
Anbieter der Immobilie
Crozilla.com
Nova cesta 60, 10000 ZAGREB
Online-ID: 2pvge56
Referenznummer: 19645560_0
Finde Angebote wie dieses
Hier geht es zu unserem Impressum, den Allgemeinen Geschäftsbedingungen, den Hinweisen zum Datenschutz und nutzungsbasierter Online-Werbung.