
Römmler Immobilien GmbH
Frau Laura Vogt
017 ···
Nr. anzeigenPreise & Kosten
Provision für Käufer
3,57 %
Provision inkl. der gesetzlichen MwSt.
Lage
Die traditionsreiche Universitätsstadt Freiberg liegt idyllisch im Herzen Sachsens und bildet das kulturelle wie wirtschaftliche Zentrum des ländlichen Raums zwischen den Metropolregionen Dresden und Chemnitz. Mit rund 40.000 Einwohnern vereint Freiberg urbanes Leben mit hoher Lebensqualität im Grünen.
Besonders...
Die Wohnung
Wohnungslage
1. Geschoss
Derzeitige Nutzung
vermietet
Wohnanlage
Energie & Heizung
Warum sehe ich diese Anzeige? – Du siehst diese Anzeige basierend auf Ihrer Navigation auf unserer Website und den Suchkriterien, die du verwendet hast.
Energieausweistyp
Verbrauchsausweis
Gebäudetyp
Wohngebäude
Wesentliche Energieträger
Gas
Gültigkeit
13.09.2018 bis 12.09.2028
Effizienzklasse
D
Endenergieverbrauch
109,00 kWh/(m²·a)
Weitere Energiedaten
Energieträger
Gas
Heizungsart
Zentralheizung
Details
Objektbeschreibung
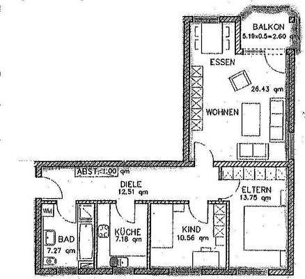
Diese großzügige 3-Zimmer-Wohnung mit ca. 78,85 m² Wohnfläche befindet sich im 1. Obergeschoss eines gepflegten Mehrfamilienhauses und bietet dank ihrer durchdachten Aufteilung sowie des aktuellen Vermietungsstands besonders interessante Perspektiven für eine langfristige Investition.
Die Wohnung empfängt mit einem...
Ausstattung
?? Wohnung & Grunddaten
+ ca. 78,85 m² Wohnfläche
+ 3 Zimmer
+ 1. Obergeschoss
+ vermietet
??? Innenausstattung
+ Flur: Laminat
+ Wohnzimmer: Laminat
+ Schlafzimmer: Teppichboden
+ weiteres Zimmer: Teppichboden
+ Küche: PVC-Belag
?? Badezimmer
+ Tageslichtbad
+ Badewanne
+...
Preisinformation
1 Stellplatz, Kaufpreis: 25,00 EUR
Weitere Informationen
Sonstiges
Rechtlicher Hinweis:
Sämtliche Objektangaben basieren auf den uns erteilten Informationen des Verkäufers. Sie wurden gewissenhaft wiedergegeben. Eine Gewähr für ihre Richtigkeit kann jedoch nicht übernommen werden. Der Empfänger kann sich nur darauf berufen, von diesem Angebot bereits vorher Kenntnis...
Anbieter der Immobilie
Römmler Immobilien GmbH
Berthelsdorfer Str. 75, 09599 Freiberg
Online-ID: 2pvf554
Referenznummer: C29
Finde Angebote wie dieses
Hier geht es zu unserem Impressum, den Allgemeinen Geschäftsbedingungen, den Hinweisen zum Datenschutz und nutzungsbasierter Online-Werbung.