
McMakler GmbH
Ihr McMakler Team
080 ···
Nr. anzeigenPreise & Kosten
Provision für Käufer
Die Provision i.H.v. 3,57 % des Kaufpreises inkl. MwSt. ist mit Kaufvertragsbeurkundung fällig, sofern der Verkaufspreis über 83.000,00 € liegt.
Liegt der Verkaufspreis dagegen bei/unter 83. Weitere Informationen siehe Provisionshinweis.
Lage
Lage: Dank Nähe zum Wasser Gelegenheit zu zahlreichen Freizeitmöglichkeiten
Bildung und Betreuung: Familienfreundliche Lage dank Kindergarten und Schule in fußläufiger Entfernung
Nahversorgung: Supermarkt, Apotheke, Postfiliale und Bankfiliale in max. 800 m Entfernung
Anbindung: Bushaltestelle in einiger Entfernung...
Das Haus
Kategorie
Einfamilienhaus
Baujahr
2000
Bezug
nach Absprache
Energie & Heizung
Warum sehe ich diese Anzeige? – Du siehst diese Anzeige basierend auf Ihrer Navigation auf unserer Website und den Suchkriterien, die du verwendet hast.
Energieausweistyp
Bedarfsausweis
Gebäudetyp
Wohngebäude
Baujahr laut Energieausweis
2000
Wesentliche Energieträger
Gas
Effizienzklasse
D
Endenergiebedarf
125,50 kWh/(m²·a)
Weitere Energiedaten
Energieträger
Gas
Heizungsart
Fußbodenheizung
Details
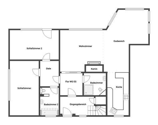
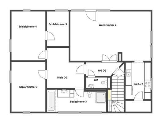
Objektbeschreibung
Objektnr: 1060682
Am schönsten Strand Deutschlands in Zingst auf dem Darß steht dieses Objekt zum Verkauf, das sich sowohl zur (Fest-) Vermietung als auch zur Eigennutzung eignet. Durch die Nähe zum Wasser stehen Ihnen hier zahlreiche Freizeitmöglichkeiten zur Verfügung, sei es für Spaziergänge oder Fahrradfahren...
Ausstattung
+ In einer ruhigen aber zentralen Umgebung in Wassernähe von Zingst, empfiehlt sich das Objekt zur individuellen Nutzung
+ Sonnige Außenbereiche: Der Garten auf ca. 629 m² großzügigem Grund lädt zum Verweilen ein - eine Terrasse und ein Balkon bereichern das Erlebnis
+ Der gute Zustand des Objektes bietet beste...
Weitere Informationen
Provisionshinweis
Die Provision i.H.v. 3,57 % des Kaufpreises inkl. MwSt. ist mit Kaufvertragsbeurkundung fällig, sofern der Verkaufspreis über 83.000,00 € liegt.
Liegt der Verkaufspreis dagegen bei/unter 83.000,00 €, ist die fest vereinbarte Mindestprovision i.H.v. mind. 5.950,00 € inkl. MwSt. mit...
Anbieter der Immobilie
McMakler GmbH
Am Postbahnhof 17, 10243 Berlin
Online-ID: 2pved54
Referenznummer: 37aeadbfff
Finde Angebote wie dieses
Hier geht es zu unserem Impressum, den Allgemeinen Geschäftsbedingungen, den Hinweisen zum Datenschutz und nutzungsbasierter Online-Werbung.