

STAN GRAD d.o.o.
Herrn Ivan Radman
003 ···
Nr. anzeigenPreise & Kosten
Provision für Käufer
Bitte beachte, das Angebot beinhaltet bei Vertragsabschluss die Zahlung einer Provision. Weitere Informationen erhältst Du vom Anbieter.
Das Haus
Kategorie
Einfamilienhaus
Baujahr
2025
Details
Objektbeschreibung
Über unsere Agentur in Kvarner wird ein äußerst wertvolles und hochwertig erbautes Ferienhaus in einer bekannten und attraktiven adriatischen Tourismusregion auf der Insel Krk, im Ort Silo, zum Verkauf angeboten.
Diese elegante Immobilie stellt eine hervorragende Wahl sowohl für die touristische Vermietung, als auch für...
Weitere Informationen
Stichworte
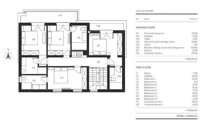
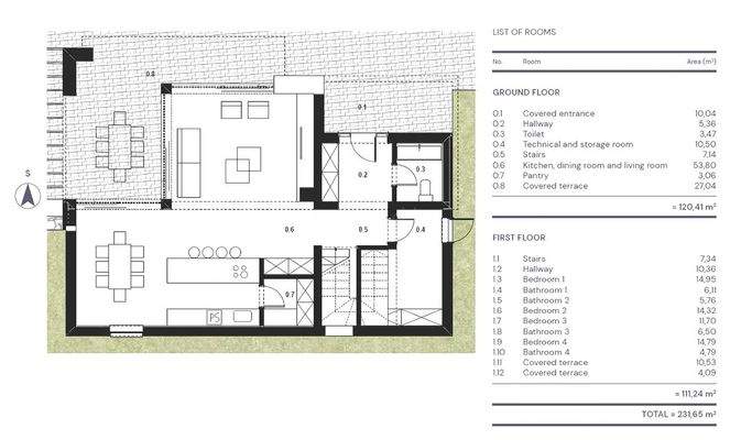
Anzahl der Schlafzimmer: 4, Anzahl der Badezimmer: 4, Anzahl der separaten WCs: 1, Anzahl der Wohn-Schlafzimmer: 1, Nebenzentrumslage
Anbieter der Immobilie
STAN GRAD d.o.o.
Ksavera Sandora Dalskog 29, 10410 VELIKA GORICA

Online-ID: 2pvd357
Referenznummer: 103633
Finde Angebote wie dieses
Hier geht es zu unserem Impressum, den Allgemeinen Geschäftsbedingungen, den Hinweisen zum Datenschutz und nutzungsbasierter Online-Werbung.