VERMONT Immobilien GesmbH

Herr Martin Westendorf

GESCHÄFTSLOKAL IN FREQUENTIERTER LAGE

€ 9,84
Preis/m²
k.A.
Verkaufsfläche
k.A.
Teilbare Fläche
k.A.
Zimmer

Der Anbieter dieses Objekts hat gegenüber der AVIV Germany GmbH als Betreiber dieses Online-Marktplatzes erklärt, nicht als Unternehmer im Sinne des § 1 KSchG zu handeln. Die im Verbraucherschutzrecht der Union verankerten Verbraucherrechte (insbesondere Informationspflichten und Rücktritts- bzw. Widerrufsrechte) finden auf den Vertrag zwischen dem Anbieter des Objekts und Ihnen (dem Interessenten) keine Anwendung.

Gewerblicher Anbieter

Der Anbieter dieses Objekts hat gegenüber der AVIV Germany GmbH als Betreiber dieses Online-Marktplatzes erklärt, als Unternehmer im Sinne des § 1 KSchG zu handeln.

AdresseStraße nicht freigegeben
1200 Wien 
(Brigittenau)
Auf Karte ansehen

Preise & Kosten

Preis/m² € 9,84 Gesamtmiete

inkl. Betriebskosten

€ 3.397,60
Nettokaltmiete € 1.975 Betriebskosten € 751,60 Heizkosten € 276 Umsatzsteuer € 566,27

Kaution

15.000,00

Provision für Mieter

Bitte beachte, das Angebot kann bei Vertragsabschluss die Zahlung einer Provision beinhalten. Weitere Informationen erhältst Du vom Anbieter.

Lage

Die Ladenfläche

Kategorie

Laden

Energie & Heizung

Heizwärmebedarf (HWB)

C

74,00 kWh/(m²·a)

Gesamtenergieeffizienz (fGEE)

C

1,25

Weitere Energiedaten

Heizungsart

Fußbodenheizung

Details

Objektbeschreibung

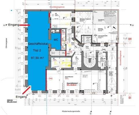
1200 Wien, Klosterneuburger Straße 43 / Ecke Othmargasse 17

Die Immobilie befindet sich in zentraler Lage in unmittelbarer Nähe zum Wallensteinplatz. Die frequentierte Klosterneuburger Straße ist eine belebte Geschäftsstraße, die zur Wallensteinstraße führt.

Die öffentliche Verkehrsanbindung ist sehr gut (U4...

Mehr anzeigen

Preisinformation

Nettokaltmiete: 1.975,00 EUR

Weitere Informationen

Stichworte
Nutzfläche: 200,70 m²

Anbieter der Immobilie

Partner

VERMONT Immobilien GesmbH

Kohlmarkt 6 Eingang Wallnerstraße 2, 1010 WIEN

user

Herr Martin Westendorf

Dein Ansprechpartner

Anbieter-Website Anbieter-Impressum

Online-ID: 2pvcw52

Referenznummer: 123/00935

Finde Angebote wie dieses

imageimageimage

Hier geht es zu unserem Impressum, den Allgemeinen Geschäftsbedingungen, den Hinweisen zum Datenschutz und nutzungsbasierter Online-Werbung.