
Vilsmeier Wohnbau GmbH
Herr Raphael Bast
Kontaktiere den Anbieter schriftlich, es ist keine Telefonnummer hinterlegt.
Preise & Kosten
Kaution
3 Monatsnettokaltmieten a' 990,00 €
Warum sehe ich diese Anzeige? – Du siehst diese Anzeige basierend auf Ihrer Navigation auf unserer Website und den Suchkriterien, die du verwendet hast.
Lage
Der Straubinger Stadtplatz liegt fußläufig nur 5 Gehminuten entfernt.
Der Bahnhof befindet sich in unmittelbarer Nähe.
Die Wohnung
Wohnungslage
3. Geschoss
Bezug
01.07.2026
Wohnanlage
Energie & Heizung
Warum sehe ich diese Anzeige? – Du siehst diese Anzeige basierend auf Ihrer Navigation auf unserer Website und den Suchkriterien, die du verwendet hast.
Weitere Energiedaten
Energieträger
Gas
Heizungsart
offener Kamin, Zentralheizung
Details
Objektbeschreibung
Die sonnige 3-Zimmer-Wohnung befindet sich in einer gepflegten Wohnanlage und liegt nur einen Katzensprung vom Straubinger Stadtplatz entfernt.
Sie befindet sich im 3.ten Obergeschoss und ist problemlos mit dem Aufzug erreichbar.
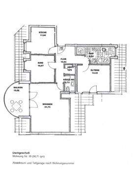
Die anrechenbare Gesamtwohnfläche beträgt ca. 97m².
AUFTEILUNG:
-...
Ausstattung
Bauart:
moderne Wohnanlage, Massivbauweise
Ausstattung:
Kunststofffenster, 2-fach Verglasung, Jalousien, bodentiefe Fenster, Fliesenboden, Eichenparkett
Heizung:
Gasheizung, Heizkörper
Elektrik:
Gegensprechanlage, Kabelanschluss...
Preisinformation
1 Stellplatz
Weitere Informationen
Sonstiges
Sämtliche Parkettböden wurden aufbereitet und abgeschliffen.
Die Armaturen in den Bädern, sowie Waschbecken und Toilettensitze wurden erneuert.
Die vorhandene Einbauküche kann vom Vormieter abgelöst werden.
Stichworte
Tiefgarage vorhanden, Nutzfläche: 5,00 m², Anzahl der Schlafzimmer: 2...
Anbieter der Immobilie
Herr Raphael Bast
Dein Ansprechpartner
Kontaktiere den Anbieter schriftlich, es ist keine Telefonnummer hinterlegt.
Online-ID: 2pvbx57
Referenznummer: 164770692#kUDSR
Finde Angebote wie dieses
Hier geht es zu unserem Impressum, den Allgemeinen Geschäftsbedingungen, den Hinweisen zum Datenschutz und nutzungsbasierter Online-Werbung.