
Agas Immobilien GmbH
Frau Ulrike Mach
004 ···
Nr. anzeigenPreise & Kosten
Kaution
3 Netto Kaltmieten
Warum sehe ich diese Anzeige? – Du siehst diese Anzeige basierend auf Ihrer Navigation auf unserer Website und den Suchkriterien, die du verwendet hast.
Lage
Die angebotene Immobilie in der Gemeinde Schöneiche bei Berlin in Brandenburg befindet sich in ruhiger und dennoch zentraler Lage - ideal für Jene, die die Vorzüge einer ländlichen Umgebung schätzen, jedoch gleichzeitig die Nähe zur pulsierenden Metropole Berlin genießen möchten.
Mit dem PKW ist der S-Bahnhof...
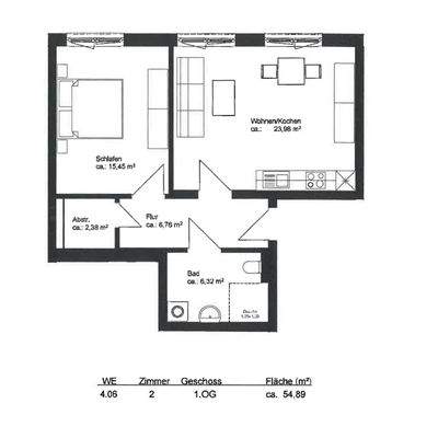
Die Wohnung
Wohnungslage
1. Geschoss
Bezug
01.06.2026
Wohnanlage
Energie & Heizung
Warum sehe ich diese Anzeige? – Du siehst diese Anzeige basierend auf Ihrer Navigation auf unserer Website und den Suchkriterien, die du verwendet hast.
Energieausweistyp
Verbrauchsausweis
Gebäudetyp
Wohngebäude
Baujahr laut Energieausweis
2017
Wesentliche Energieträger
ERDGAS_LEICHT
Gültigkeit
bis 19.09.2035
Effizienzklasse
C
Endenergieverbrauch
92,50 kWh/(m²·a)
Weitere Energiedaten
Energieträger
Gas
Heizungsart
Fußbodenheizung
Details
Objektbeschreibung
"Wohnen in der Dorfaue"
Diese gepflegte, barrierearme 2-Zimmer-Etagenwohnung in Schöneiche bietet auf ca. 55 m² Wohnfläche ein modernes und zugleich komfortables Zuhause. Das im Jahr 2017 errichtete Wohnhaus mit insgesamt drei Etagen überzeugt durch seinen zeitgemäßen Charakter und eine angenehme, ruhige...
Ausstattung
Betreten Sie das Objekt, empfängt Sie ein Flur welcher sämtliche Räumlichkeiten miteinander verbindet. Zur linken finden Sie das großzügige Duschbad mit Platz für eine Waschmaschine, während sich der Abstellraum geradezu im Flur befindet. Zur rechten eröffnet sich Ihnen der Zugang zur hellen, offenen Wohnküche mit 2 Fenstern...
Preisinformation
1 Stellplatz
Weitere Informationen
Sonstiges
Wir haben Ihr Interesse geweckt?
Hier auf dieser Seite finden Sie jetzt die Möglichkeit der Kontaktaufnahme. Für weitere Informationen (Termine, Anschrift u.ä.) benötigen wir Ihre Angaben: Name, Vorname, Anschrift, E-Mail, Telefonnummer (fest/mobil).
Unvollständige Anfragen können wir nicht...
Anbieter der Immobilie
Online-ID: 2pv8556
Referenznummer: DA7C1_053
Finde Angebote wie dieses
Hier geht es zu unserem Impressum, den Allgemeinen Geschäftsbedingungen, den Hinweisen zum Datenschutz und nutzungsbasierter Online-Werbung.