
Immobilien Heyen
004 ···
Nr. anzeigenPreise & Kosten
Provision für Käufer
2,975% inkl. MwSt.
Lage
Die Immobilie liegt zentral in Kißlegg im Allgäu. Durch die attraktive Lage im Luftkurort sind sämtliche Einrichtungen des täglichen Bedarfs, wie Einkaufsmöglichkeiten, Ärzte und Schulen, sowie der Schlosspark und die örtlichen Seen fußläufig erreichbar. Kißlegg zeichnet sich zudem durch eine hervorragende Verkehrsanbindung...
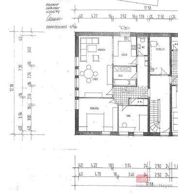
Die Wohnung
Wohnungslage
1. Geschoss
Bezug
nach Absprache
Derzeitige Nutzung
vermietet
Wohnanlage
Energie & Heizung
Warum sehe ich diese Anzeige? – Du siehst diese Anzeige basierend auf Ihrer Navigation auf unserer Website und den Suchkriterien, die du verwendet hast.
Energieausweistyp
Bedarfsausweis
Gebäudetyp
Wohngebäude
Baujahr laut Energieausweis
1900
Wesentliche Energieträger
GAS
Gültigkeit
bis 03.01.2034
Effizienzklasse
G
Endenergiebedarf
203,80 kWh/(m²·a)
Weitere Energiedaten
Energieträger
Gas
Haustyp
Holzhaus
Heizungsart
Zentralheizung
Details
Objektbeschreibung
Die angebotene 3-Zimmer-Wohnung befindet sich in einem Mehrfamilienhaus in Massivbauweise, das insgesamt fünf Wohneinheiten umfasst. Die Beheizung erfolgt über eine im Jahr 2024 neu installierte Gas-Zentralheizung, die Wärmeabgabe in der Wohnung wird über klassische Heizkörper reguliert. Im Innenbereich besticht die Wohnung...
Preisinformation
1 Garagenstellplatz
Weitere Informationen
Sonstiges
Um die Pflege des Gemeinschaftseigentums kümmern sich die Bewohner im Rahmen einer klassischen Kehrwoche, ein externer Hausmeisterservice besteht nicht. Die Internetanbindung ist über DSL gewährleistet. Zur Wohnung gehört eine abschließbare Einzelgarage, die sicheren Stellplatz für einen PKW bietet.
Bei...
Anbieter der Immobilie
Online-ID: 2pv4b53
Referenznummer: RC633
Finde Angebote wie dieses
Hier geht es zu unserem Impressum, den Allgemeinen Geschäftsbedingungen, den Hinweisen zum Datenschutz und nutzungsbasierter Online-Werbung.