
ohne-makler.net - Immobilien selbst vermarkten
Privat vom Eigentümer
Kontaktiere den Anbieter schriftlich, es ist keine Telefonnummer hinterlegt.
Preise & Kosten
Provision für Käufer
provisionsfrei
Lage
LAGE
Das Haus befindet sich in 03249 Münchhausen, einem Ortsteil der Stadt Sonnewalde im Landkreis Elbe-Elster (südliches Brandenburg). Das Stadtzentrum Finsterwalde erreichen Sie in wenigen Minuten - hier finden Sie alle Geschäfte des täglichen Bedarfs, Ärzte, Apotheken, Schulen, Kindertagesstätten und das...
Das Haus
Kategorie
Einfamilienhaus
Baujahr
2023
Bezug
nach Absprache
Energie & Heizung
Warum sehe ich diese Anzeige? – Du siehst diese Anzeige basierend auf Ihrer Navigation auf unserer Website und den Suchkriterien, die du verwendet hast.
Energieausweistyp
Bedarfsausweis
Gebäudetyp
Wohngebäude
Effizienzklasse
A+
Endenergiebedarf
19,00 kWh/(m²·a)
Weitere Energiedaten
Heizungsart
Fußbodenheizung, Luft-/Wasser-Wärmepumpe
Details
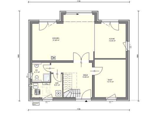
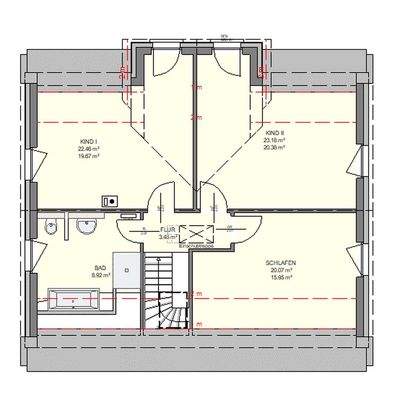
Objektbeschreibung
MODERNES EINFAMILIENHAUS MIT STIL UND KOMFORT - NEUBAU AUF GROSSZÜGIGEM GRUNDSTÜCK IN MÜNCHHAUSEN BEI FINSTERWALDE
Provisionsfrei - direkt vom Eigentümer!
Willkommen in Ihrem neuen Zuhause! Dieses moderne, massiv gebaute Einfamilienhaus vom renommierten Anbieter Heinz von Heiden (Typ Alto 630) vereint zeitgemäße...
Ausstattung
Garten, Vollbad, Duschbad, Einbauküche, Gäste-WC, Fliesen
Bemerkungen:
FAZIT
Ein modernes, energieeffizientes Zuhause mit großzügigem Raumangebot, hochwertiger Ausstattung und viel Gestaltungsspielraum - ideal für Familien, die Wert auf Qualität, Komfort und Individualität...
Preisinformation
2 Stellplätze
1 Garagenstellplatz
Weitere Informationen
Sonstiges
Heizungsart: Fußbodenheizung
Energieträger: Luft-/Wasserwärme
Makleranfragen nicht erwünscht. Nach § 7 UWG sind unaufgeforderte Kontaktaufnahmen durch Makler ohne ausdrückliche Einwilligung des Empfängers verboten!
ohne-makler (OM) ist weder Anbieter noch Vermittler der Immobilie. OM betreibt...
Anbieter der Immobilie
ohne-makler.net - Immobilien selbst vermarkten
Humboldtstr. 25 A, 21509 Glinde
Privat vom Eigentümer
Dein Ansprechpartner
Kontaktiere den Anbieter schriftlich, es ist keine Telefonnummer hinterlegt.
Online-ID: 2puwz57
Referenznummer: 433937
Finde Angebote wie dieses
Hier geht es zu unserem Impressum, den Allgemeinen Geschäftsbedingungen, den Hinweisen zum Datenschutz und nutzungsbasierter Online-Werbung.