
RE/MAX Plus Immobilienservice GmbH
Herr Dietmar Bauernfried
+43 ···
Nr. anzeigenPreise & Kosten
Kaution
3.360,00 €
Provision für Mieter
3 Bruttomonatsmieten zzgl. 20% USt.
Warum sehe ich diese Anzeige? – Du siehst diese Anzeige basierend auf Ihrer Navigation auf unserer Website und den Suchkriterien, die du verwendet hast.
Die Industriefläche
Bezug
nach Vereinbarung
Energie & Heizung
Warum sehe ich diese Anzeige? – Du siehst diese Anzeige basierend auf Ihrer Navigation auf unserer Website und den Suchkriterien, die du verwendet hast.
Heizwärmebedarf (HWB)
130,00 kWh/(m²·a)
Gesamtenergieeffizienz (fGEE)
1,48
Weitere Energiedaten
Energieträger
Fernwärme
Details
Objektbeschreibung
Objektbeschreibung
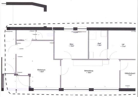
Zur Vermietung gelangt eine vielseitig nutzbare Gewerbefläche im Erdgeschoss eines Gebäudes in zentraler Lage von Kirchberg an der Pielach. Die Gesamtfläche beträgt rund 73 m² und eignet sich ideal für unterschiedliche gewerbliche Nutzungen, wie beispielsweise Verkauf, Dienstleistung, Praxis, Büro oder...
Preisinformation
Nettokaltmiete: 560,00 EUR
Weitere Informationen
Stichworte
Nutzfläche: 73,00 m², Anzahl der Badezimmer: 1, Anzahl der separaten WCs: 1, Bundesland: Niederösterreich
Anbieter der Immobilie
RE/MAX Plus Immobilienservice GmbH
Neugebäudeplatz 12, 3100 ST. PÖLTEN
Online-ID: 2puqa55
Referenznummer: OBGC20260312125046054831d765df9
Finde Angebote wie dieses
Hier geht es zu unserem Impressum, den Allgemeinen Geschäftsbedingungen, den Hinweisen zum Datenschutz und nutzungsbasierter Online-Werbung.