

Charlotte Huhn Immobilien
Frau Charlotte Huhn
076 ···
Nr. anzeigenPreise & Kosten
Provision für Käufer
Käuferprovision: 3,57 % inkl. MwSt inkl. MwSt.
Lage
Die Immobilie befindet sich in Kollmarsreute, einem Ortsteil der Großen Kreisstadt Emmendingen. Kollmarsreute liegt südöstlich des Emmendinger Stadtzentrums und bietet eine ruhige Wohnlage mit guter Anbindung an die Infrastruktur der Umgebung.
Verkehrsanbindung:
Kollmarsreute verfügt über eine eigene Haltestelle an...
Das Haus
Baujahr
1968
Bezug
nach Absprache!
Energie & Heizung
Warum sehe ich diese Anzeige? – Du siehst diese Anzeige basierend auf Ihrer Navigation auf unserer Website und den Suchkriterien, die du verwendet hast.
Weitere Energiedaten
Energieträger
Elektro
Heizungsart
Etagenheizung, Ofen
Details
Objektbeschreibung
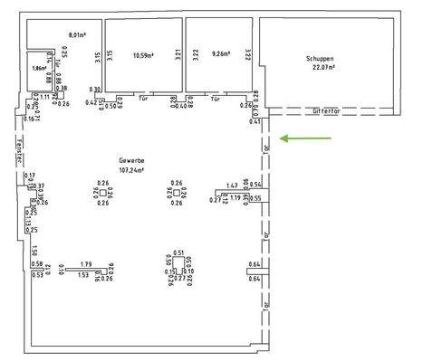
Attraktives Wohn- & Geschäftshäuser mit insgesamt ca. 435 m² Gesamtfläche - ca. 298 m² Wohnfläche und ca. 137 m² Gewerbefläche.
Dieses großzügiges Wohn- und Geschäftshaus, bietet eine gute Gelegenheit für Investoren, Selbstnutzer oder Gewerbetreibende. Das Gebäude umfasst insgesamt vier Wohneinheiten sowie eine...
Ausstattung
Wohn- und Geschäftshaus mit
- drei Wohneinheiten sowie
- ein Büro (aktuell als Wohnung genutzt)
- multifunktionale Gewerbefläche mit Sektionaltoren, überdachtem Vorplatz, optionaler Waschplatz möglich, Starkstrom vorhanden
- nicht unterkellert
- Dachspitz nicht ausgebaut
- ca. 838 m² Grundstück
- ca...
Weitere Informationen
Sonstiges
Jahresnettokaltmiete: ca. 41.000,- Euro, bitte sprechen Sie uns für weitere Details an. Eine Optimierung der Miete ist sinnvoll und gut möglich.
Besichtigungen: Für die Vereinbarung eines Besichtigungstermins bitten wir Sie um vorherige Kontaktaufnahme. Aus Rücksicht auf die aktuellen Mieter bitten wir...
Anbieter der Immobilie
Charlotte Huhn Immobilien
Sandstraße 4, 79104 Freiburg im Breisgau

Online-ID: 2pupd56
Referenznummer: ADS10A
Finde Angebote wie dieses
Hier geht es zu unserem Impressum, den Allgemeinen Geschäftsbedingungen, den Hinweisen zum Datenschutz und nutzungsbasierter Online-Werbung.