
Heimatmakler Murnau vert.d. BenAmbros Media GmbH
Herr Benjamin Kominek
Kontaktiere den Anbieter schriftlich, es ist keine Telefonnummer hinterlegt.
Preise & Kosten
Provision für Käufer
3,57 % inkl. gesetzlicher MwSt inkl. MwSt.
Die Provision beträgt 3,57 % inkl. gesetzlicher MwSt. und ist vom Käufer zu zahlen.
Lage
Die Immobilie befindet sich in Oberau im Landkreis Garmisch-Partenkirchen.
Oberau liegt im bayerischen Alpenvorland und bietet zahlreiche Freizeitmöglichkeiten wie Wandern, Radfahren und Wintersport. Einkaufsmöglichkeiten, Gastronomie sowie Einrichtungen des täglichen Bedarfs sind vor Ort vorhanden, weitere Angebote...
Die Wohnung
Wohnungslage
Erdgeschoss
Derzeitige Nutzung
vermietet
Wohnanlage
Energie & Heizung
Warum sehe ich diese Anzeige? – Du siehst diese Anzeige basierend auf Ihrer Navigation auf unserer Website und den Suchkriterien, die du verwendet hast.
Energieausweistyp
Verbrauchsausweis
Gebäudetyp
Wohngebäude
Wesentliche Energieträger
Öl
Gültigkeit
24.03.2023 bis 23.03.2033
Effizienzklasse
E
Endenergieverbrauch
149,30 kWh/(m²·a) - Warmwasser enthalten
Weitere Energiedaten
Energieträger
Öl
Heizungsart
offener Kamin
Details
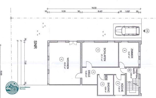
Objektbeschreibung
Die angebotene, vermietete Erdgeschosswohnung befindet sich in einem Mehrfamilienhaus mit fünf Parteien in Oberau und verfügt über einen zugeordneten Gartenanteil.
Die Wohnfläche beträgt ca. 100 m² (inklusive anteilig angerechneter Terrasse). Ursprünglich als 3-Zimmer-Wohnung konzipiert, umfasst die Einheit eine...
Ausstattung
Fliesenböden in den Wohn- und Schlafräumen
Teilweise Holzdecken
Helle Räume durch großzügige Fensterflächen
Kunststoff- und Holzfenster mit Rollläden
Separate Küche
Badezimmer mit Badewanne
Öl-Zentralheizung (erneuert ca. 2014)
Klassische Heizkörper in allen Räumen
Eigener Gartenanteil mit...
Weitere Informationen
Sonstiges
Ein Großteil des monatlichen Hausgeldes i.H.v. 364,58 € ist auf umlagefähige Betriebskosten zurückzuführen (näheres ist den Unterlagen zu entnehmen).
Die Wohnung ist aktuell stabil vermietet und bietet perspektivisch Entwicklungspotenzial bei der Miete im Rahmen der gesetzlichen...
Anbieter der Immobilie
Heimatmakler Murnau vert.d. BenAmbros Media GmbH
James-Loeb-Strasse 11, 82418 Murnau
Herr Benjamin Kominek
Dein Ansprechpartner
Kontaktiere den Anbieter schriftlich, es ist keine Telefonnummer hinterlegt.
Online-ID: 2pumk54
Referenznummer: 20#UWURH9
Finde Angebote wie dieses
Hier geht es zu unserem Impressum, den Allgemeinen Geschäftsbedingungen, den Hinweisen zum Datenschutz und nutzungsbasierter Online-Werbung.