
Wohnungsgenossenschaft UNITAS eG
Frau Anne Richter
+49 ···
Nr. anzeigenPreise & Kosten
nicht in Warmmiete enthalten
Kaution
1.200,00
Warum sehe ich diese Anzeige? – Du siehst diese Anzeige basierend auf Ihrer Navigation auf unserer Website und den Suchkriterien, die du verwendet hast.
Lage
Geschäfte/Nahversorgung im Wohnumfeld, Naherholung in näherer Umgebung. Verkehrsanbindung an die A9, A14 und A38, den Flughafen Leipzig-Halle, die S-Bahnen Richtung Leipzig und Halle, Regionalbahn nach Eilenburg, Regionalexpress nach Magdeburg, Regionalbuslinien in das Umland, Stadtbuslinien innerorts.
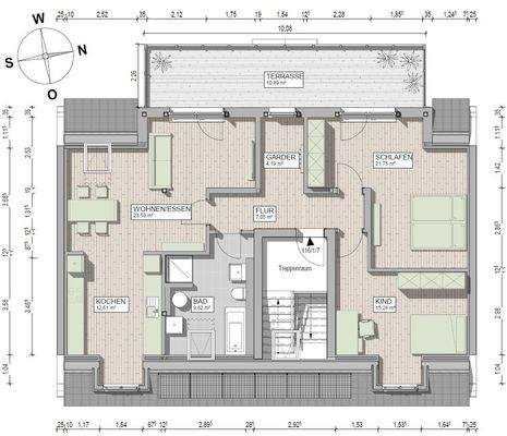
Die Wohnung
Wohnungslage
4. Geschoss
Bezug
sofort
Wohnanlage
Energie & Heizung
Warum sehe ich diese Anzeige? – Du siehst diese Anzeige basierend auf Ihrer Navigation auf unserer Website und den Suchkriterien, die du verwendet hast.
Energieausweistyp
Bedarfsausweis
Gebäudetyp
Wohngebäude
Wesentliche Energieträger
Elektro
Gültigkeit
bis 01.06.2035
Effizienzklasse
A+
Endenergiebedarf
16,70 kWh/(m²·a)
Details
Objektbeschreibung
"Natura" in der Feldstraße 6 in Delitzsch heißt Sie in guter Wohnlage und inmitten gewachsener Infrastruktur herzlich willkommen. Erleben Sie modernes Wohnen mit neuesten Standards in klassischer Architektur. Das Objekt wurde umfassend saniert. Dabei entstand ein weitestgehend energieautarkes, emissionsarmes Gebäude unter...
Ausstattung
Aufzug, Bad mit Dusche, Bad mit Fenster, Bad mit Wanne, Balkon-Info, Barrierearm, Bodenbelag Designplanke, Bodenbelag Fliesen, gehobene Ausstattung, Heizungstyp, Keller, Nebengelass, Terrasse, Wohnungsstrom pauschal inklusive
Wohnen mit Aussicht! Für Familien oder Paare mit einem Mehrbedarf an Platz bietet...
Weitere Informationen
Sonstiges
Es sind Genossenschaftsanteile gemäß Satzung zu zeichnen.
- Kaution 1 Monatsmiete
- gesonderte Anmietung Stellplatz für 60,00 € monatlich möglich
Zur Sicherstellung einer planbaren Mietentwicklung erfolgt die Anpassung der Miete über eine vertraglich vereinbarte...
Dokumente
Anbieter der Immobilie
Online-ID: 2pum252
Referenznummer: 416/1/7
Finde Angebote wie dieses
Hier geht es zu unserem Impressum, den Allgemeinen Geschäftsbedingungen, den Hinweisen zum Datenschutz und nutzungsbasierter Online-Werbung.