
LEIPZIG MAKLER: Immobilien-Experten in Sachsen, Thüringen und Sachsen-Anhalt
Frau Lea Cohrs LEIPZIG MAKLER - TEAM WOHNEN
004 ···
Nr. anzeigenPreise & Kosten
Provision für Käufer
Bitte beachte, das Angebot kann bei Vertragsabschluss die Zahlung einer Provision beinhalten. Weitere Informationen erhältst Du vom Anbieter.
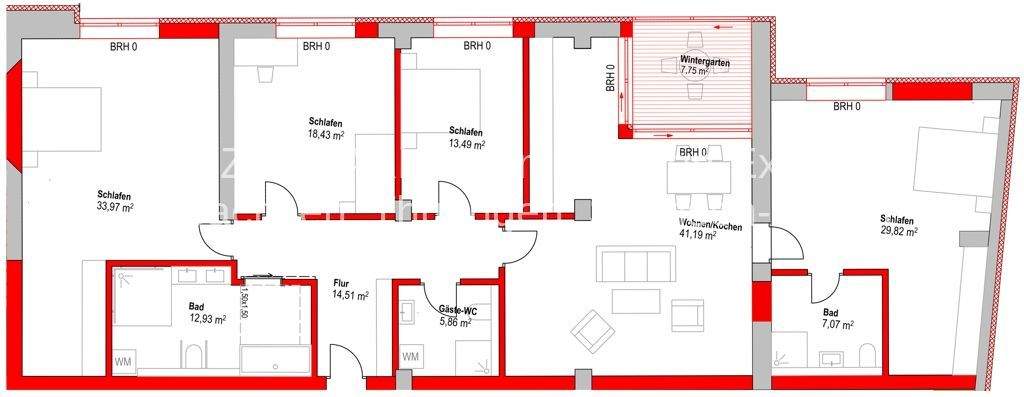
Die Wohnung
Details
Objektbeschreibung
Wir sanieren unser Mehrfamilienhaus und bieten für Familien bezahlbare frisch sanierte 4-Raumwohnungen und 5 -Raumwohnungen an, meistens mit Balkon oder Loggia.
Bitte melden Sie sich bei Interesse per Email, wir rufen schnellstmöglich zurück
Ausstattung
Gehobene Ausstattung, aber fairer Preis
Fertigstellung 2027
Kaufpreise zwischen 2.800 € bis 3.500 €
An der S-Bahnstrecke der S4
3-fach verglaste Schallschutzfenster
Weitere Informationen
Sonstiges
Sind Sie auch in den sozialen Medien unterwegs, dann folgen Sie uns gerne auf:
Instagram: www.instagram.com/leipzig.makler
Facebook: www.facebook.com/leipzig.makler
Twitter: www.twitter.com/leipzig_makler
Linkedin: www.linkedin.com/in/leipzig-makler
XING...
Anbieter der Immobilie
LEIPZIG MAKLER: Immobilien-Experten in Sachsen, Thüringen und Sachsen-Anhalt
Ritterstraße 7, 04109 Leipzig
Online-ID: 2pujs54
Referenznummer: C01
Finde Angebote wie dieses
Hier geht es zu unserem Impressum, den Allgemeinen Geschäftsbedingungen, den Hinweisen zum Datenschutz und nutzungsbasierter Online-Werbung.