

Schichtel & Partner Immobilien
Frau Perschia Zandi
+49 ···
Nr. anzeigenPreise & Kosten
Provision für Käufer
3,57 % (inkl. 19,00 % MwSt.) vom Käufer
Lage
Diese außergewöhnliche Immobilie befindet sich in einer der traditionsreichsten und zugleich reizvollsten Lagen des Bremer Nordens - in der historischen Villa Fritze, einem architektonischen Wahrzeichen Vegesacks und ehemaligen Standesamt, unmittelbar nahe der Weser.
Das Anwesen liegt eingebettet in ein repräsentatives...
Die Wohnung
Wohnungslage
Erdgeschoss
Bezug
Nach Vereinbarung
Derzeitige Nutzung
vermietet
Wohnanlage
Energie & Heizung
Warum sehe ich diese Anzeige? – Du siehst diese Anzeige basierend auf Ihrer Navigation auf unserer Website und den Suchkriterien, die du verwendet hast.
Energieausweis: für diesen Gebäudetyp nicht notwendig
Weitere Energiedaten
Energieträger
Gas
Heizungsart
offener Kamin, Zentralheizung
Details
Objektbeschreibung
Gelegen in der Villa Fritze, einem kulturellen Einzeldenkmal und ehemaligen Standesamt aus dem Jahre ca. 1876, befindet sich ein Wohnkunstwerk von seltener Schönheit.
Bereits der erste Eindruck im historischen Treppenhaus mit originalen Schachbrettfliesen verspricht wahre Magie. Die breite, erhabene Eingangstür aus...
Ausstattung
- Sanierte und möblierte Wohnung aus der Gründerzeit in der Villa Fritze
- Baujahr: ca. 1876
- Umbausanierung: ca. 2017
- Wohnfläche: ca. 150 m²
- Nutzfläche: ca. 10 m²
- Etage: Erdgeschoss
- Kulturelles Einzeldenkmal und ehemaliges Standesamt
- Historisches Treppenhaus mit...
Preisinformation
1 Tiefgaragenstellplatz
Weitere Informationen
Stichworte
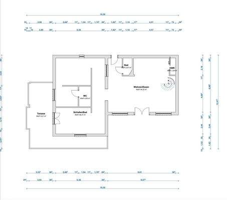
Anzahl der Schlafzimmer: 2, Anzahl der Badezimmer: 2, Anzahl der separaten WCs: 1, Anzahl Terrassen: 1
Anbieter der Immobilie

Online-ID: 2pugc55
Referenznummer: SP636C
Finde Angebote wie dieses
Hier geht es zu unserem Impressum, den Allgemeinen Geschäftsbedingungen, den Hinweisen zum Datenschutz und nutzungsbasierter Online-Werbung.