

Gruttmann Immobilien GmbH
Frau Britta C. Gruttmann
030 ···
Nr. anzeigenPreise & Kosten
Provision für Käufer
Gemäß der gesetzlichen Regelung zur Teilung der Maklercourtage beträgt die Provision 3,57% des Kaufpreises inklusive 19% MwSt. jeweils in gleicher Höhe für die Verkäuferseite sowie für die Käuferseite.
Lage
Wer die Vorzüge der Großstadt genießen, aber dennoch in ruhiger, naturnaher Umgebung wohnen möchte, findet in Dallgow-Döberitz den idealen Wohnort. Nur 8 km nordwestlich von Berlin gelegen, vereint die Gemeinde eine idyllische Lage mit einer hervorragenden Anbindung an die Hauptstadt.
Die Umgebung ist geprägt von...
Das Haus
Baujahr
2013
Bezug
nach Absprache
Derzeitige Nutzung
frei
Energie & Heizung
Warum sehe ich diese Anzeige? – Du siehst diese Anzeige basierend auf Ihrer Navigation auf unserer Website und den Suchkriterien, die du verwendet hast.
Energieausweistyp
Bedarfsausweis
Gebäudetyp
Wohngebäude
Baujahr laut Energieausweis
2012
Wesentliche Energieträger
Strom
Gültigkeit
27.03.2025 bis 27.03.2035
Effizienzklasse
A+
Endenergiebedarf
26,00 kWh/(m²·a)
Weitere Energiedaten
Energieträger
Elektro
Heizungsart
Luft-/Wasser-Wärmepumpe
Details
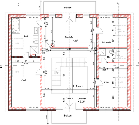
Objektbeschreibung
Die moderne, elegante Villa wurde im Jahr 2012 auf einem ca. 1.018 m² großen Grundstück mit einer Wohnfläche von ca. 320 m² und einer Nutzfläche von ca. 240 m² errichtet, hat eine symmetrische Architektur und einen edlen, zeitlosen Baustil.
Das offen gestaltete, repräsentative Foyer beeindruckt mit einer...
Weitere Informationen
Energieausweis
liegt zur Besichtigung vor.
Stichworte
Sonstiges/Wohnen: Galerie
Anbieter der Immobilie

Online-ID: 2pu9h57
Referenznummer: VK-25116 bl
Finde Angebote wie dieses
Hier geht es zu unserem Impressum, den Allgemeinen Geschäftsbedingungen, den Hinweisen zum Datenschutz und nutzungsbasierter Online-Werbung.