
Novel Real Immobilien GmbH
Frau Tatiana Hanzl
+43 ···
Nr. anzeigenPreise & Kosten
Provision für Käufer
Bitte beachte, das Angebot kann bei Vertragsabschluss die Zahlung einer Provision beinhalten. Weitere Informationen erhältst Du vom Anbieter.
Lage
DORNBACH / KONGRESSPARK
Die Wohnung
Wohnungslage
6. Geschoss
Bezug
1. Quartal 2027
Wohnanlage
Energie & Heizung
Warum sehe ich diese Anzeige? – Du siehst diese Anzeige basierend auf Ihrer Navigation auf unserer Website und den Suchkriterien, die du verwendet hast.
Heizwärmebedarf (HWB)
24,60 kWh/(m²·a)
Gesamtenergieeffizienz (fGEE)
0,72
Details
Objektbeschreibung
EXKLUSIVES WOHNEN MIT WEITBLICK UND MEHRWERT
Am Rande von Dornbach, dem exklusiven und charmanten Stadtteil am westlichen Stadtrand von Wien, steht ein einzigartiges Neubauprojekt kurz vor der Fertigstellung. Genießen Sie eine urbane Oase mit perfekter Infrastruktur und Verkehrsanbindung und die Nähe zu den schönsten...
Weitere Informationen
Stichworte
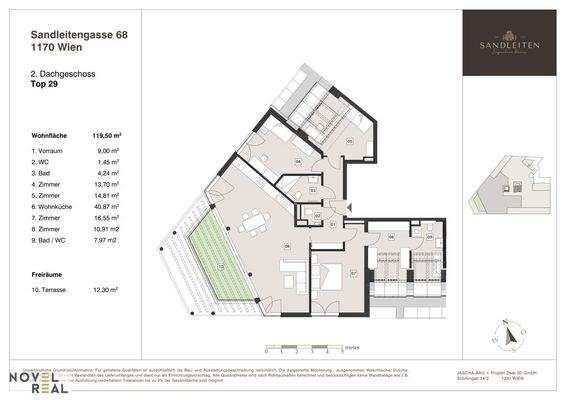
Nutzfläche: 119,50 m², Anzahl der Badezimmer: 2, Anzahl der separaten WCs: 3, Anzahl Terrassen: 1, Balkon-Terrassen-Fläche: 12,30 m², Bundesland: Wien, 7 Etagen
Anbieter der Immobilie
Novel Real Immobilien GmbH
Dorotheergasse 6-8/8-9, 1010 Wien
Online-ID: 2pu8657
Referenznummer: OBGC202510301209169082e813a6b4f
Finde Angebote wie dieses
Günstige Immobilienfinanzierung einfach online berechnen
Persönliches Angebot berechnenWarum sehe ich diese Werbung? – Du siehst diese Werbung basierend auf Deiner Navigation auf unserer Website und der von Dir verwendeten Suchkriterien.
Diese Werbung wird bezahlt von durchblicker
Werbung melden
Hier geht es zu unserem Impressum, den Allgemeinen Geschäftsbedingungen, den Hinweisen zum Datenschutz und nutzungsbasierter Online-Werbung.