
S Immobilienpartner GmbH
Herr Nils Klefisch
004 ···
Nr. anzeigenPreise & Kosten
Provision für Käufer
3,00 % inkl. MwSt.
Lage
Diese Immobilie liegt in einer gut angebundenen und lebendigen Umgebung, die sowohl Ruhe als auch eine Vielzahl an Freizeitmöglichkeiten bietet. Die Anbindung an den öffentlichen Nahverkehr ist hervorragend, mit einer Straßenbahnstation in kurzer Entfernung, die eine bequeme Verbindung in die Innenstadt und umliegende...
Das Haus
Kategorie
Einfamilienhaus
Baujahr
1960
Energie & Heizung
Warum sehe ich diese Anzeige? – Du siehst diese Anzeige basierend auf Ihrer Navigation auf unserer Website und den Suchkriterien, die du verwendet hast.
Energieausweistyp
Bedarfsausweis
Gebäudetyp
Wohngebäude
Gültigkeit
bis 09.03.2036
Effizienzklasse
H
Endenergiebedarf
276,10 kWh/(m²·a)
Weitere Energiedaten
Energieträger
Gas
Details
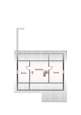
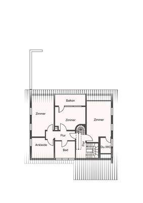
Objektbeschreibung
In einer der begehrtesten Wohnlagen von Köln-Rath/Heumar, eingebettet in die charmante und ruhige Göttersiedlung, präsentiert sich dieses freistehende Einfamilienhaus am Ende einer Sackgasse. Das uneinsehbare Grundstück mit einer Fläche von ca. 693 m² bietet ein Höchstmaß an Privatsphäre und Ruhe - ideal für Familien oder...
Ausstattung
- Wohnfläche ca. 186 m²
- zzgl. ca. 90 m² Nutzfläche
- Grundstück ca. 693 m²
- 8 Zimmer
- Teil unterkellert
- Gasheizung mit Warmwasseraufbereitung
- Alu-Doppelverglasung
- Terrasse mit uneinsehbarem Garten
- Doppelcarport
- Doppelgarage mit ausgebautem Obergeschoss
- En Suite Bäder
-...
Weitere Informationen
Stichworte
Garage vorhanden, Carport vorhanden, Stellplatz vorhanden, Nutzfläche: 90,00 m², Anzahl Terrassen: 1, 2 Etagen
Anbieter der Immobilie
Online-ID: 2pu7k55
Referenznummer: 84019
Finde Angebote wie dieses
Hier geht es zu unserem Impressum, den Allgemeinen Geschäftsbedingungen, den Hinweisen zum Datenschutz und nutzungsbasierter Online-Werbung.