
Schwabenhaus Warnemünde - Ronny Rataj Handelsvertretung für die Schwabenhaus GmbH
Ronny Rataj
+49 ···
Nr. anzeigenPreise & Kosten
Provision für Käufer
provisionsfrei
Lage
31 Quaddelbarg Parzelle 31 Top Grundstück
Das Haus
Kategorie
Einfamilienhaus
Energie & Heizung
Warum sehe ich diese Anzeige? – Du siehst diese Anzeige basierend auf Ihrer Navigation auf unserer Website und den Suchkriterien, die du verwendet hast.
Weitere Energiedaten
Heizungsart
Fußbodenheizung
Details
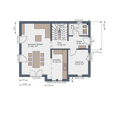
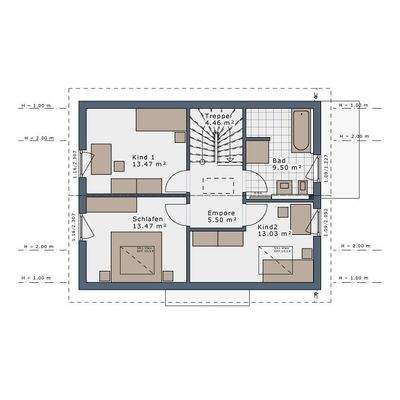
Objektbeschreibung
Werden Sie Schwabenhaus-Bauherr und bauen Sie Ihr maßgeschneidertes Traumhaus!
Angeboten wird ein Baugrundstück, das zunächst direkt von privat erworben und anschließend mit Ihrem individuellen Traumhaus bebaut werden wird.
Seit 1966 hat Schwabenhaus über 25.000 Hausträume realisiert und liefert seinen Bauherr...
Ausstattung
Jedes unserer Fertighäuser wird speziell für Sie geplant und ist perfekt auf die Anforderungen und Vorgaben Ihres Bauvorhabens angepasst - Bebauungspläne, eine besondere Grundstückslage und die gewünschten Eigenleistungen werden im Detail geprüft und berücksichtigt.
Jedes Schwabenhaus verfügt standardmäßig über:
-...
Weitere Informationen
Sonstiges
Das Haus ist projektiert inkl. Grundstück. Das Grundstück wird in Kommission angeboten bzw. direkt von Dritten verkauft. Daher kann der o.g. Preis aufgrund aktueller Marktsituationen schwanken.
Die Bauabwicklung kann kurzfristig nach Grundstückserwerb begonnen werden. Bilder zeigen möglicherweise...
Online-ID: 2pu5f55
Referenznummer: RR-376961-Kröpelin
Finde Angebote wie dieses
Hier geht es zu unserem Impressum, den Allgemeinen Geschäftsbedingungen, den Hinweisen zum Datenschutz und nutzungsbasierter Online-Werbung.