

Christiana Baur Immobilien
Herr Daniel Lontschar
+49 ···
Nr. anzeigenPreise & Kosten
Provision für Käufer
3,57% inkl. der gesetzlichen Mehrwertsteuer
Zuzüglich zum Kaufpreis sind folgende Nebenkosten vom Käufer zu entrichten: Grunderwerbsteuer 5%, Notargebühren ca. 2% und Maklergebühren 3,57% inkl. Weitere Informationen siehe Provisionshinweis.
Lage
Die Erdgeschosswohnung befindet sich in schöner Wohnlage von Frommern, dem größten Teilort von Balingen mit großem Garten.
In Frommern finden Sie alles, was man zum alltäglichen Bedarf braucht, Kindergarten, Schulen, Einkaufsmöglichkeiten, Ärzte, Apotheke etc. und verschiedene Vereine.
Die Wohnung
Wohnungslage
Erdgeschoss
Wohnanlage
Details
Objektbeschreibung
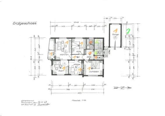
Die 100 m² Wohnfläche verteilen sich auf eine Eingangsdiele mit Garderobe, der schöne, vor allem helle Wohnbereich mit Zugang auf den sonnigen Balkon. Die Einbauküche ist mit allen technischen Geräten ausgestattet und führt in das separate Esszimmer. Im Badezimmer sind eine Badewanne, ein Waschtisch und ein Tageslichtfenster...
Ausstattung
Die Erdgeschosswohnung sucht einen neuen Eigentümer und ist ausgestattet mit:
- einer Einbauküche
- einem Balkon
- einer Garage
- einem Kellerraum
- Gemeinschaftsraum im Keller
- Gemeinschaftsgarten
Preisinformation
1 Garagenstellplatz
Weitere Informationen
Provisionshinweis
3,57% inkl. der gesetzlichen Mehrwertsteuer
Zuzüglich zum Kaufpreis sind folgende Nebenkosten vom Käufer zu entrichten: Grunderwerbsteuer 5%, Notargebühren ca. 2% und Maklergebühren 3,57% inkl. der gesetzlichen Mehrwertsteuer. Bei Kaufpreis unter 100.000,- Euro beträgt die Maklergebühr pauschal 3.570,-...
Anbieter der Immobilie

Online-ID: 2pu4j56
Referenznummer: 1869
Finde Angebote wie dieses
Hier geht es zu unserem Impressum, den Allgemeinen Geschäftsbedingungen, den Hinweisen zum Datenschutz und nutzungsbasierter Online-Werbung.