

Karen Ulrich Immobilien GmbH
Herr Maximilian Jünke
041 ···
Nr. anzeigenPreise & Kosten
Kaution
4.794,00
Warum sehe ich diese Anzeige? – Du siehst diese Anzeige basierend auf Ihrer Navigation auf unserer Website und den Suchkriterien, die du verwendet hast.
Lage
Die Immobilie liegt in der ländlich geprägten Gemeinde Seevetal, unmittelbar vor den Toren Hamburgs. Die ruhige Lage zeichnet sich durch eine hervorragende Anbindung an die umliegenden Städte aus, insbesondere an Hamburg, das nur eine kurze Fahrt entfernt ist.
Die Umgebung ist geprägt von grünen Wiesen und Feldern, was den...
Das Haus
Kategorie
Reihenendhaus
Baujahr
2025
Energie & Heizung
Warum sehe ich diese Anzeige? – Du siehst diese Anzeige basierend auf Ihrer Navigation auf unserer Website und den Suchkriterien, die du verwendet hast.
Energieausweistyp
Bedarfsausweis
Gebäudetyp
Wohngebäude
Wesentliche Energieträger
LUFTWP
Gültigkeit
bis 01.09.2035
Effizienzklasse
A+
Endenergiebedarf
9,10 kWh/(m²·a)
Weitere Energiedaten
Heizungsart
Luft-/Wasser-Wärmepumpe
Details
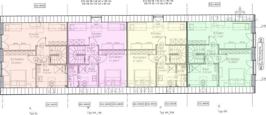
Objektbeschreibung
Willkommen in Ihrem Wohntraum in Seevetal - Lindhorst. Das Viebrock Townhouse vereint architektonische Stimmigkeit mit modernster Ausstattung und Technik. Das Townhouse verfügt über vier Wohneinheiten mit offenen Stellplätzen, Bikeport , Wallbox (deren Nutzungsdetails mit dem Vermieter vereinbart werden) sowie Gartenanteil...
Ausstattung
- 4 Zimmer
- hochwertige Einbauküche der Firma Nolte mit Elektrogeräten
- zwei moderne Badezimmer mit ebenerdiger Dusche und Tageslichtfenster
- Hauswirtschaftsraum
- sichtgeschützte Terrasse / Gartenanteil
- elektrische Außenrollläden
- Spitzboden als Abstellfläche
- Barrierearm
- Effizienzklasse A+ /...
Preisinformation
1 Stellplatz
Weitere Informationen
Sonstiges
Die Anmietung ist für den Mieter courtagefrei.
Wir möchten, dass Sie zufrieden sind.
Wir sind ein erfahrener Immobilienmakler und bereits seit 1987 tätig. Für alle Fragen rund um die Anmietung von Immobilien stehen wir Ihnen jederzeit gern zur Verfügung.
Sie möchten Ihre Immobilie vermieten? Auch...
Anbieter der Immobilie
Karen Ulrich Immobilien GmbH
Marquardtsweg 2, 21217 Seevetal

Online-ID: 2pu4j54
Referenznummer: 1326_1
Finde Angebote wie dieses
Hier geht es zu unserem Impressum, den Allgemeinen Geschäftsbedingungen, den Hinweisen zum Datenschutz und nutzungsbasierter Online-Werbung.