

Immofuchs - Ihr Makler vor Ort Christian Schmidt
Herr Christian Schmidt
037 ···
Nr. anzeigenPreise & Kosten
Kaution
812
Warum sehe ich diese Anzeige? – Du siehst diese Anzeige basierend auf Ihrer Navigation auf unserer Website und den Suchkriterien, die du verwendet hast.
Lage
Der Stadtteil Schloßchemnitz grenzt im Norden an das Stadtzentrum an und erstreckt sich zu einem Teil über den Schloßberg, zum anderen über das nördliche Brühl-Gebiet das auch Nordviertel genannt wird. Am Fuße der Schloßkirche befinden sich urige Kneipen. Der Schloßteich, eine Kletterhalle, das Eisstadion sowie der nahe...
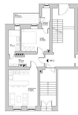
Die Wohnung
Wohnungslage
Erdgeschoss
Bezug
01.05.2026
Wohnanlage
Energie & Heizung
Warum sehe ich diese Anzeige? – Du siehst diese Anzeige basierend auf Ihrer Navigation auf unserer Website und den Suchkriterien, die du verwendet hast.
Energieausweis: für diesen Gebäudetyp nicht notwendig
Weitere Energiedaten
Heizungsart
Zentralheizung
Details
Objektbeschreibung
Diese attraktive und lichtdurchflutete 2-Zimmer-Wohnung überzeugt durch eine moderne Raumaufteilung und befindet sich im Hochparterre eines gepflegten Mehrfamilienhauses. Auf ca. 50 m² Wohnfläche erwartet Sie ein offener Wohn- und Essbereich mit integrierter Einbauküche, die ein angenehmes Wohnambiente schafft.
Ein...
Ausstattung
*2 Zimmer*
* Flur
* helles Wohnzimmer mit offener Küche
* offene Küche mit moderner Einbauküche
* ruhiger Balkon, der in den Hinterhof gerichtet ist
* Tageslichtbad mit Badewanne und Waschmaschinenanschluss
* gemütliches Schlafzimmer
* Abstellraum
Weitere Informationen
Sonstiges
Fehlende Angaben zum Energieausweis gemäß Energieeinsparverordnung 2014 (EnEV) begründen sich durch Nichtangabepflicht bei Denkmalschutzobjekten, Grundstücken, nichtbeheizbaren Immobilien oder wurden bisher trotz Aufforderung gegenüber dem Auftraggeber nicht zur Verfügung gestellt.
Stichworte
Zustand...
Anbieter der Immobilie
Immofuchs - Ihr Makler vor Ort Christian Schmidt
Schiersandstraße 16, 09116 Chemnitz

Online-ID: 2pu3h53
Finde Angebote wie dieses
Hier geht es zu unserem Impressum, den Allgemeinen Geschäftsbedingungen, den Hinweisen zum Datenschutz und nutzungsbasierter Online-Werbung.