

VIVEE Immobillienbuero
004 ···
Nr. anzeigenPreise & Kosten
Provision für Käufer
provisionsfrei
Das Haus
Kategorie
Doppelhaushälfte
Details
Objektbeschreibung
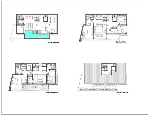
LUXUSVILLA MIT MEERBLICK
Moderne freistehende Luxusvilla mit atemberaubendem Meerblick.
Das Anwesen verfügt über einen Aufzug, der die 3 Etagen des Hauses miteinander verbindet. Von allen Schlafzimmern und vom Wohnzimmer aus haben Sie einen spektakulären Meerblick.
In seinem Infinity-Pool können Sie ein entspannendes...
Weitere Informationen
Stichworte
Nutzfläche: 410,00 m², Gesamtfläche: 410,00 m², Anzahl der Schlafzimmer: 4, Anzahl der Badezimmer: 6, Bundesland: Alicante (Costa Blanca)>
Anbieter der Immobilie
VIVEE Immobillienbuero
Calle Salvador Dali 13, C.C Via Park II, Local 15, 03189 Orihuele Costa
004 ···
Nr. anzeigenOnline-ID: 2ptz357
Referenznummer: 55965
Finde Angebote wie dieses
Hier geht es zu unserem Impressum, den Allgemeinen Geschäftsbedingungen, den Hinweisen zum Datenschutz und nutzungsbasierter Online-Werbung.