

Volksbank Mittweida Immobilien GmbH
Herr Peter Singer
037 ···
Nr. anzeigenPreise & Kosten
Provision für Käufer
3,57 % inkl. MwSt.
Abschreibung/Anlage
Denkmalschutz-Afa
Lage
In der idyllischen Gemeinde Bärenstein, am Pöhlbach im Erzgebirgskreis in Sachsen, bietet sich eine exzellente Gelegenheit, 4 von 6 Wohnungen in ruhiger Kleinstadt-Lage zu erwerben. Die Immobilie befindet sich etwa 200 Meter südlich vom Stadtzentrum, was eine optimale Anbindung an alle wichtigen Einrichtungen und...
Die Wohnung
Wohnanlage
Energie & Heizung
Warum sehe ich diese Anzeige? – Du siehst diese Anzeige basierend auf Ihrer Navigation auf unserer Website und den Suchkriterien, die du verwendet hast.
Energieausweis: für diesen Gebäudetyp nicht notwendig
Weitere Energiedaten
Energieträger
Gas
Heizungsart
Zentralheizung
Details
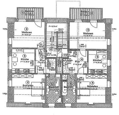
Objektbeschreibung
Das Wohnhaus ist auf Grund seiner Putzfassade mit späthistorischen Elementen von baugeschichtlicher Bedeutung und wurde lt. Wappen 1889 erbaut. Der charmante Altbau besticht durch seine massive Bauweise, die Ihnen ein Gefühl von Solidität und Beständigkeit vermittelt.
Im Jahre 2003 erfolgte eine Sanierung und...
Ausstattung
In allen Wohnungen gelangt man direkt vom Flur in die Zimmer sowie Küche und Bad/WC.
Vom Wohnzimmer aus geht es auf einen großzügigen Balkon mit Blick ins Wohnumfeld, den Gartenbereich sowie zu den Garagen und Stellplätzen.
In den Küchen mit Fenster sind die Fußböden gefliest, im Arbeitsbereich gibt es einen...
Weitere Informationen
Sonstiges
Wir bitten um Verständnis dafür, dass Besichtigungstermine oder detaillierte Informationen zu unseren Objekten nur dann möglich sind, wenn Sie uns eine vollständig ausgefüllte Kontaktanfrage über das Immobilienportal oder unsere Homepage zugesendet haben. Nur so können wir schnell auf Ihre Anfrage reagieren...
Anbieter der Immobilie

Volksbank Mittweida Immobilien GmbH
Markt 25, 09648 Mittweida

Online-ID: 2ptye57
Referenznummer: 3632
Finde Angebote wie dieses
Hier geht es zu unserem Impressum, den Allgemeinen Geschäftsbedingungen, den Hinweisen zum Datenschutz und nutzungsbasierter Online-Werbung.