

Costa Blanca Immobilien
Frau Katja Priemer
+49 ···
Nr. anzeigenPreise & Kosten
Provision für Käufer
provisionsfrei
Das Haus
Kategorie
Villa
Details
Objektbeschreibung
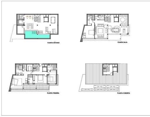
Diese moderne freistehende Luxusvilla vereint architektonische Eleganz, höchsten Wohnkomfort und einen unvergleichlichen Panoramablick auf das glitzernde Mittelmeer. Auf drei Ebenen bietet dieses Anwesen alles, was das Herz begehrt: Lichtdurchflutete Räume, hochwertige Materialien und ein Ambiente, das Luxus neu...
Weitere Informationen
Unsere Homepage
Schauen Sie doch bitte auch auf unserer Homepage:
www.neubaucostablanca.de
Hier finden Sie eine große Auswahl toller Objekte.
Durch unsere Kooperation mit allen Bauträgern an der Costa Blanca können Sie mit uns jederzeit jedes Neubauobjekt besichtigen. Ein deutschsprachiger Immobilienmakler wird...
Anbieter der Immobilie

Online-ID: 2ptxk57
Referenznummer: CBI-G-5613
Finde Angebote wie dieses
Hier geht es zu unserem Impressum, den Allgemeinen Geschäftsbedingungen, den Hinweisen zum Datenschutz und nutzungsbasierter Online-Werbung.