

Peter Lademann - Freie Handelsvertretung für die BIEN-ZENKER GmbH
Herr/Frau Peter Lademann
017 ···
Nr. anzeigenPreise & Kosten
Provision für Käufer
provisionsfrei
Lage
Delitzsch ist eine Große Kreisstadt im Nordwesten des Freistaates Sachsen. Sie ist nach der Einwohnerzahl die größte Stadt im Landkreis Nordsachsen und nach Leipzig, Halle und Merseburg viertgrößte Stadt im Ballungsraum Leipzig-Halle.
Bis auf die Kernstadt und ihre unmittelbar angrenzenden Ortsteile ist der Delitzscher...
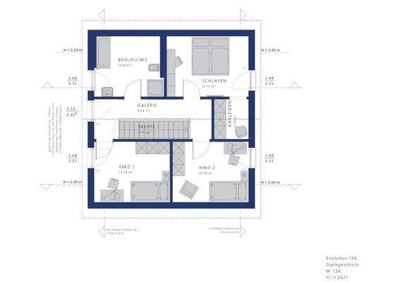
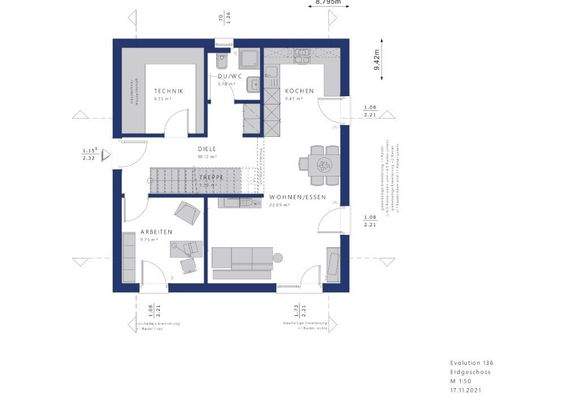
Das Haus
Kategorie
Einfamilienhaus
Energie & Heizung
Warum sehe ich diese Anzeige? – Du siehst diese Anzeige basierend auf Ihrer Navigation auf unserer Website und den Suchkriterien, die du verwendet hast.
Weitere Energiedaten
Haustyp
KfW 55
Heizungsart
Luft-/Wasser-Wärmepumpe
Details
Objektbeschreibung
An alles gedacht - alles dabei! 136 m² schöner Wohnen.
EVOLUTION 136 fasziniert nicht nur mit seinen beiden schicken Satteldach-Varianten mit 38° Dachneigung und 100 cm
Kniestock oder 25° Satteldach und 160 cm Kniestock, sondern es hat noch einiges mehr zu bieten. Denn auch mit dem
eleganten Walmdach, dem schicken...
Ausstattung
Wir erstellen Ihr Haus komplett bezugsfertig, deshalb sind folgende Leistungen in unserem Haus serienmäßig:
+ Ausführung als Effizienzhaus 55, nach Ihrer Wahl selbstverständlich auch als Effizienzhaus 40 oder 40 plus,
+ Alle zur Erstellung des Bauantrages notwendigen Architektenleistungen,
+ Ausführliches...
Weitere Informationen
Sonstiges
Das Grundstück ist im obigen Preis eingerechnet, es wird ohne zusätzliche Provision an einen Bien-Zenker Bauherren bereitgestellt.
Zusätzliche Baunebenkosten müssen noch hinzugerechnet werden. Hierüber beraten wir Sie gern.
Wir bieten Ihnen interessante Finanzierungsmöglichkeiten inklusive Beantragung aller...
Anbieter der Immobilie
Peter Lademann - Freie Handelsvertretung für die BIEN-ZENKER GmbH
Döbichauer Straße 13, 04435 Schkeuditz

Online-ID: 2ptwc57
Referenznummer: 11250-8510
Finde Angebote wie dieses
Hier geht es zu unserem Impressum, den Allgemeinen Geschäftsbedingungen, den Hinweisen zum Datenschutz und nutzungsbasierter Online-Werbung.